小區:中建福地星城
戶型:90㎡;108㎡;113㎡;121㎡;123㎡;140㎡

中建福地星城周邊環伺中南商圈、街道口商圈、南湖商圈三大商圈,吃喝玩樂購一站式盡享,步履間領享城市前沿潮流生活,賦予生活上乘享受。
為了給中建福地星城的業主帶來更好的生活體驗,澳華裝飾的設計師全面解析建面90-140㎡的戶型方案。從居住者出發,從場景入手,平衡視覺效果與居住功能,擴展生活秩序!
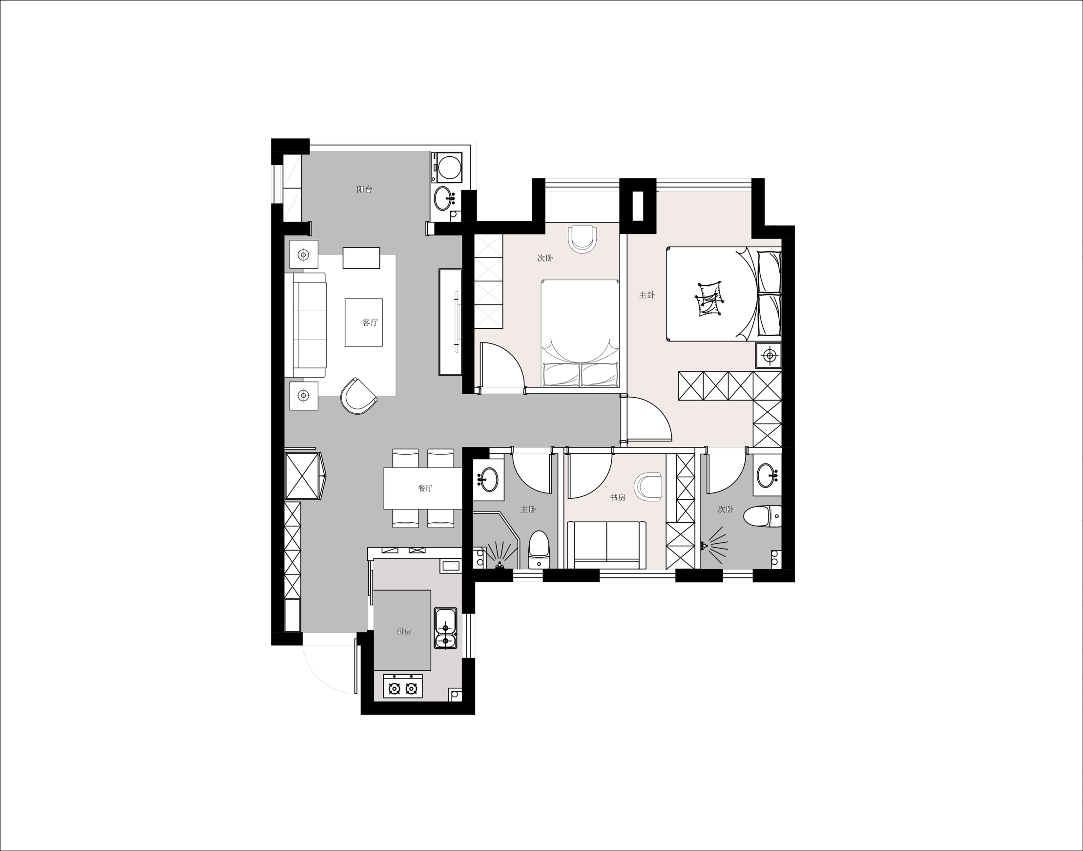
90㎡戶型解析

△原始結構圖
戶型優點
√ 客廳采光好,通風好,空間明亮通透。
√ 入戶門廳寬敞,格局大方。
√ 過道較少,空間利用率高。
戶型缺點
× 客廳面積較小,活動范圍有限。
× 次臥面積較小,收納空間不足。
方案一
無玄關,保證空間通透性

思路解析
1 門廳不設置玄關,從入戶到陽臺空間都聯通。最大程度打開視覺,也增強了各個空間的互動性。
2 鞋柜酒柜做成連體通長,視覺延伸感好,顯得空間大。
效果圖展示


方案二
入戶設置玄關,私密性好

思路解析
1 門廳設置玄關,視線有遮擋,客廳私密性更好,空間層次也更豐富。
2 次臥做成多功能房,空間利用率高。
效果圖展示


108㎡戶型解析

△原始結構圖
戶型優點
√ 客廳及主次臥朝南,采光和通風都較好。
√ 戶型功能區域劃分清楚。
戶型缺點
× 餐廳面積較小。
× 兩個次臥面積較小。
× 入戶面積較小,收納空間有限。
方案一
延伸客廳+保留三房

思路解析
1 客廳與陽臺聯通,增大會客區域。
2 獨立廚房,隔絕油煙。
3 保留三房,設置多功能房,滿足多人口家庭需求。
4 主臥L型衣帽間,增加收納空間。
效果圖展示



方案二
開放式廚房+輕奢套臥

思路解析
1 客廳與陽臺聯通,增大會客區域。
2 開放式廚房,增加空間的互動性。
3 主臥套房,增加收納,提升生活品質。
4 飄窗拆除,整體利用增加收納。
效果圖展示



113㎡戶型解析

△原始結構圖
戶型優點
√ 采光通風都很不錯。
√ 三房兩廳,能夠滿足一家五口的居住需求。
√ 戶型功能區域劃分清楚。
戶型缺點
× 廚房面積較小。
× 次臥面積較小。
方案一
客廳陽臺聯通+保留三房

思路解析
1 客廳與陽臺打通,增大視覺空間以及亮度。
2 保留三房,滿足多人口家庭的居住需求。
效果圖展示


方案二
開放式廚房+獨立書房

思路解析
1 拆除部分墻體,玄關連接餐廚,做開放式廚房。
2 客廳打通陽臺,南北通透兩面采光。
3 主臥向書房外擴,擴大主臥空間。
效果圖展示


121㎡戶型解析

△原始結構圖
戶型優點
√ 客餐廳一體,形成一個大開間。
√ 三房兩廳,能夠滿足多人口家庭的居住需求。
√ 公區視距寬闊,可塑性強。
戶型缺點
× 臥室尺寸較小,收納空間有限。
× 主臥室功能不齊全。
× 次衛生間分區不合理。
方案
聯通公區,利用過道增設衣帽間

思路解析
1 客廳陽臺餐廳都聯通,增大視覺空間及亮度。
2 主臥室增設衣帽間,強大儲物。
3 小臥室定制尺寸,滿足所有功能的需求。
4 隱蔽客衛生原有尷尬的開門方向。
5 用大板塊材質一體化劃分區域。
效果圖展示



123㎡戶型解析

△原始結構圖
戶型優點
√ 采光和通風非常好,空間明亮通透。
√ 戶型功能區域劃分清晰。
戶型缺點
× 生活陽臺不清晰。
× 臥室尺寸不大。
方案一
開闊公區+保留三房

思路解析
1 客廳與餐廳、陽臺聯通,增大會客區域,拉伸視覺,增加透視感。
2 主衛納入主臥,形成一個便捷舒適的套間。
3 次衛做干濕分離,方便多人同時使用。
4 保留三房,滿足多人口家庭的居住需求。
效果圖展示


方案二
主衛采用干濕分離

思路解析
1 餐廳、客廳、陽臺采用一體化設計,增大視覺空間,增加了互動性。
2 次衛采用干濕分離,提升衛生間的體驗感。
3 一間次臥做多功能房,提升空間利用的多樣性。
效果圖展示


140㎡戶型解析

戶型優點
√ 邊戶四室兩衛的房子,三面采光,南北通透。
√ 戶型較方正,動靜分區明確,利用率最大。
√ 飄窗可以拆除,增大室內空間面積。
戶型缺點
× 承重墻較多。
× 客臥較小。
方案一
超大套臥+開闊公區

思路解析
1 陽臺并入客廳,增大視覺空間,增強了互動性。
2 一間次臥改為超大衣帽間,L型衣櫥收納強大。
3 衣帽間與主衛一起包進主臥,形成功能強大的套間。
4 次衛做干濕分離,提升生活便捷度。
效果圖展示


方案二
實用四房,滿足多人口需求

思路解析
1 陽臺并入客廳,增大視覺空間,增強了互動性。
2 三臥室+一書房設置,滿足多人口家庭需求。
3 主臥借用次臥空間做步入式衣帽間,增加收納。
4 次衛做干濕分離,提升生活便捷度。
效果圖展示


小區:中建御景星城
戶型:86㎡;97㎡;122㎡;125㎡;127㎡;

中建御景星城位于武漢市硚口宗關,由武漢中建三局江北房地產開發有限公司建成。中建御景星城自帶大體量商業,并配有1.8萬方超級生態公園,配套齊全。
為了給中建御景星城的業主帶來更好的生活體驗,澳華裝飾的設計師全面解析建面86-127㎡的戶型方案。從居住者出發,從場景入手,平衡視覺效果與居住功能,擴展生活秩序!
86㎡戶型解析

△原始結構圖
戶型優點
√ 戶型功能區域劃分清晰。
√ 各個區域大小均勻,戶型方正。
√ 過道較少,空間利用率高。
戶型缺點
× 次臥面積較小,采光較弱。
× 餐廳面積較小,采光較弱。
× 只有一個衛生間。
方案
無玄關,保證空間通透性

思路解析
1 門廳不設置玄關,從入戶到客廳間都聯通,改善了餐廳光線。
2 兩間臥室做入墻式收納柜,增加收納,釋放空間。
3 獨立廚房,隔絕油煙。
效果圖展示


97㎡戶型解析

△原始結構圖
戶型優點
√ 戶型功能區域劃分清晰。
√ 客廳采光和通風較好。
戶型缺點
× 三間房間面積都較小,收納面積有限。
× 餐廳面積較小,采光較弱。
× 只有一個衛生間。
方案
舒適套臥+一體式衣帽間

思路解析
1 客廳與陽臺聯通,增大會客區域。
2 獨立廚房,隔絕油煙。
3 將書房與主臥打通,形成一個U型衣帽間,補充收納。
4 衛生間做干濕分離,便于多人同時使用。
效果圖展示


122㎡戶型解析

△原始結構圖
戶型優點
√ 南北通透,采光通風都不錯。
√ 戶型功能分布合理。
√ 三房兩廳,能夠滿足一家五口的居住需求。
戶型缺點
× 廚房面積較小。
× 過道長、窄,浪費面積。
× 臥室面積較小,缺少儲物空間。
方案
南北通透、陽光明媚的舒適公區

思路解析
1 增加過道豐富性,弱化狹長缺點。
2 打通陽臺,連接客餐廳,構建一個南北通透的舒適公共區域。
3 重點規劃主臥室、主衛和小孩房,增強功能與舒適性。
效果圖展示



125㎡戶型解析

△原始結構圖
戶型優點
√ 采光通風都很不錯。
√ 戶型功能區域劃分清晰。
√ 觀景大陽臺,雙陽臺設計。
戶型缺點
× 入戶玄關過道較長,鞋柜不好放置。
× 入戶大門正對了主臥門,存在風水問題。
× 廚房沒有窗戶,采光較差。
方案
聯通公區,利用過道增設鞋帽間

思路解析
1 客廳與陽臺聯通,整體更加通透敞亮,提升大氣視覺。
2 餐廳位置把陽臺納入進來,增設西廚區。
3 打通廚房,連接餐廳,做開放式廚房設計。中西廚結合,改善了原始廚房沒有窗戶的問題。
4 入戶玄關位置增設鞋帽間,使過長的玄關通透明亮,不壓抑,也滿足了功能需求。
5 靠外面的臥室設計成多功能房,既能用作辦公,也能當作臥室,兩全其美。
6 餐廳島臺設計了綠植景觀,既解決了入戶玄關沒有玄關墻一眼看到底的尷尬,又解決了入戶大門正對臥室門的風水問題。
效果圖展示



127㎡戶型解析

△原始結構圖
戶型優點
√ 南北通透,采光和通風好。
√ 戶型功能區域劃分清晰。
戶型缺點
× 餐廳面積較小,活動空間受限。
× 衛生間利用率較低,沒有儲物空間。
方案
開闊公區+多功能書房

思路解析
1 衛生間采用三分離,增加利用率。
2 次臥改成儲物間,增加收納。
3 一間次臥做多功能房,增加生活方式的多樣性。
4 獨立廚房,隔絕油煙。
效果圖展示




小區:華發中城薈中央首府
戶型:105㎡;120㎡;138㎡;142㎡;168㎡

華發中城薈二期中央首府采用商住分離的城市綜合體規劃布局,既能便捷享受綜合體配套高端商業,又很好的規避了商業人流的干擾。形成了集居住、辦公、商業、休閑為一體的最具活力和最高價值的城市新地標。
為了給華發中央首府的業主帶來更好的生活體驗,澳華裝飾的設計師全面解析建面105-168㎡的戶型方案。從居住者出發,從場景入手,平衡視覺效果與居住功能,擴展生活秩序!
105㎡戶型解析

△原始結構圖
戶型優點
√ 客廳采光好,通風好,空間明亮通透。
√ 客廳和主臥面積較大,空間開闊。
√ 過道較少,空間利用率高。
戶型缺點
× 廚房和餐廳面積較小,活動范圍有限。
× 一間次臥面積較小,收納空間不足。
方案
開放式廚房+島臺,釋放空間

思路解析
1 門廳設置玄關,很好的阻擋了入戶視線。靠墻設置玄關柜,增加收納。
2 陽臺與客廳打通,增大視覺空間以及亮度。
3 開放式廚房設計,釋放空間。
4 餐廳設置島臺+水槽,布局新穎,功能便捷。
5 主衛和最小的房間納入主臥做衣帽間,形成舒適套臥,增加收納,極大提高生活品質。
效果圖展示


120㎡戶型解析

△原始結構圖
戶型優點
√ 戶型方正,采光和通風都較好。
√ 功能區域劃分清楚。
√ 三間臥室面積大小均勻。
√ 客廳和餐廳面積較大,空間開闊。
戶型缺點
× 廚房面積較小,活動受限。
方案
開放式廚餐廳+舒適三房

思路解析
1 開放式廚房設計,釋放空間,解決廚房較小的問題。
2 廚房與餐廳處在一個空間,動線便捷,操作方便。
3 保留三房,滿足多人口家庭需求。
4 主衛和雜物間納入主臥,形成一個小型衣帽間,增加收納空間。
效果圖展示


138㎡戶型解析

△原始結構圖
戶型優點
√ 戶型方正,采光通風都很不錯。
√ 四房兩廳,能夠滿足一家五口的居住需求。
√ 戶型功能區域劃分清楚。
戶型缺點
× 廚房面積較小,活動受限。
× 次臥面積較小。
方案
餐廚一體+獨立衣帽間

思路解析
1 客廳與陽臺打通,增大視覺空間以及亮度。
2 廚房與餐廳打通,優化后的兩個空間形成環形動線,空間相互借用形成餐廚一體。讓原來無法實現的島臺,電器高柜,超大的餐廚儲物量得以實現。
3 單獨把北面最小的房間拿出來做衣帽間,實現收納便捷。
4 兒童房利用了原有的飄窗的位子,設置睡眠區、學習區和儲物區。從小讓寶寶有個獨立的空間,教會他尊重與被尊重。
效果圖展示


142㎡戶型解析

△原始結構圖
戶型優點
√ 采光通風都很不錯。
√ 戶型功能區域劃分清晰。
√ 擁有開闊的觀景大陽臺。
√ 四房兩廳,能夠滿足多人口家庭的居住需求。
戶型缺點
× 北面房間位置不合適獨立運用。
× 大框架剪力墻結構固定,只能做小調整。
方案
餐廚一體+多動能房

思路解析
1 客廳與陽臺聯通,增大會客區域,提升大氣視覺。
2 餐廳廚房一體化設計,提升視覺空間的同時,考慮充足存儲空間,并且打造了島臺及對窗吧臺,功能豐富多彩。
3 北面臥室獨立分區,改造一個功能型書房,加一個小孩房或者客臥營造豪華舒適的實用空間。
效果圖展示




168㎡戶型解析

△原始結構圖
戶型優點
√ 采光和通風非常好,空間明亮通透。
√ 戶型功能區域劃分清晰。
√ 擁有開闊的大陽臺。
戶型缺點
× 廚房區域空間太小,活動受限。
× 其中一個衛生間無采光。
× 臥室區域的收納分配不合理。
× 公共區域劃分不合理。
方案
主臥套房+開放式陽臺

思路解析
1 主臥做了套房,放大整個主臥的空間,盡享舒適便捷的私人空間。
2 保留兩間次臥,滿足多人口家庭需求。
3 開放式的陽臺與客廳的組合方式,增加了室內外的空間的互動。
效果圖展示


小區:融僑濱江城天域
戶型:118㎡;128㎡;133㎡;138㎡;181㎡;

融僑濱江城天域雄踞武昌濱江商務區,長江主軸黃金地段,是集高端住宅、5A甲級寫字樓、購物中心、星級酒店等多種業態為一體的都會封面之作。
為了給融僑濱江城天域的業主帶來更好的生活體驗,澳華裝飾的設計師全面解析建面118-181㎡的戶型方案。從居住者出發,從場景入手,平衡視覺效果與居住功能,擴展生活秩序!
118㎡戶型解析

△原始結構圖
戶型優點
√ 采光通風都很不錯。
√ 功能區劃分清晰,動線合理。
√ 超大陽臺可分區域設計。
戶型缺點
× 廚房較小,難以滿足當代人對于廚房功能的需求。
× 一間次臥面積較小。
方案
專設健身區,享健康品質生活

思路解析
1 客廳陽臺做了聯通,視野采光好。
2 餐廳廚房半開放式,增設西廚。提升視覺空間的同時,創造了充足存儲空間。
3 將其中一間次臥的非承重墻推掉,打造一間開闊、通透的健身區域。
4 擴大衛生間面積,做干濕分離,提高生活品質。取消掉另外的一個衛生間,補充多功能房的空間。
效果圖展示



128㎡戶型解析

△原始結構圖
戶型優點
√ 大陽臺采光通風好。
√ 戶型功能區域劃分清晰。
√ 空間利用程度高。
戶型缺點
× 餐廳空間小,活動比較局限。
× 主臥面積較小,收納不充足。
方案一
獨立書房+舒適套臥

思路解析
1 客廳與陽臺聯通,增大會客區域。
2 獨立廚房設計,符合中式做飯環境,隔絕油煙。
3 設置獨立書房,享舒適靜謐的辦公空間。
4 主臥設L型衣柜,形成一個精巧的衣帽間。另外將主衛包進主臥,提高生活便捷程度。
效果圖展示


方案二
舒適三房,多人口家庭優選

思路解析
1 客廳與陽臺聯通,增大會客區域。
2 獨立廚房設計,符合中式做飯環境,隔絕油煙。
3 設置榻榻米房,增加收納,滿足多人口家庭需求。
4 主臥設L型衣柜,形成一個精巧的衣帽間。另外將主衛包進主臥,提高生活便捷程度。
效果圖展示


133㎡戶型解析

△原始結構圖
戶型優點
√ 采光通風非常好。
√ 戶型功能區域劃分清晰。
√ 擁有超級觀景大陽臺。
戶型缺點
× 生活陽臺不清晰。
× 大框架剪力墻結構固定,只能做小調整。
方案
奢華套臥+U字形開放式廚房

思路解析
1 客廳陽臺打通,增大視覺空間。
2 廚放與餐廳開放式一體設計,島臺的加入形成了一個U字形的操作空間,增加一家人的親密互動。
3 一間次臥和主衛納入主臥,并利用柜體隔出一個步入式衣帽間和一間書房,形成了一個功能強大、空間開闊的主臥套房。
效果圖展示


138㎡戶型解析

△原始結構圖
戶型優點
√ 客廳、餐廳采光好,通風好,空間明亮通透。
√ 四房兩衛,戶型功能區域劃分清晰。
√ 方正空間南北通透。
戶型缺點
× 北面房間空間較小。
× 入戶面積較小,收納空間有限
方案
實用四房+大氣開闊的公區

思路解析
1 餐廳與陽臺聯通,增加用餐空間,提升大氣視覺。
2 陽臺融入客廳,讓空間更寬敞,視野更開闊。
3 保留四房,滿足多人口家庭的居住需求。
4 主衛納入主臥,形成一個便攜舒適的套間。
效果圖展示


181㎡戶型解析

△原始結構圖
戶型優點
√ 南北通透采光性好,通風好。
√ 客餐廳功能區域空間較大,有利于舒適性的布置,增加使用率和趣味空間。
√ 室內墻體較少,布局靈活。
√ 戶型功能區域劃分清晰。
戶型缺點
× 小陽臺作用不大,易空間浪費。
方案一
奢華套臥+雙人辦公區

思路解析
1 部分陽臺與客餐廳聯通,增大會客區域,提升大氣視覺。
2 利用空間布局使得主臥門不再正對過道,解決風水難題。
3 主臥設L型衣柜,形成一個精巧的衣帽間。另外將主衛包進主臥,放置浴缸,提高生活品質。
4 面積較小的次臥做書房,打造了一個舒適靜謐的雙人辦公區域。
5 一間次臥將部分陽臺面積納入,擴大了使用空間。
效果圖展示



方案二
奢華套臥+獨立書房

思路解析
1 部分陽臺與客餐廳聯通,增大會客區域,提升大氣視覺。
2 利用空間布局使得主臥門不再正對過道,解決風水難題。
3 主臥設L型衣柜,形成一個精巧的衣帽間。另外將主衛包進主臥,放置浴缸,提高生活品質。
4 面積較小的次臥做書房,打造了一個舒適靜謐的雙人辦公區域。
效果圖展示


小區:華僑城歡樂天際
戶型:106㎡;116㎡;122㎡;130㎡;140㎡;

歡樂天際,是華僑城在華中投資規模最大的新型商業商務綜合體,以全新城市模型展開設想,打造集生態、居住、商業、教育、休閑、商務等為一體的齊全之城,承載了人們對于城市理想生活的無限期許。
為了給華僑城歡樂天際的業主帶來更好的生活體驗,澳華裝飾的設計師全面解析建面106-140㎡的戶型方案。從居住者出發,從場景入手,平衡視覺效果與居住功能,擴展生活秩序!
106㎡戶型解析

△原始結構圖
戶型優點
√ 戶型采光通風俱佳。
√ 功能區劃分清晰,動線合理。
戶型缺點
× 廚房較小,難以滿足當代人對于廚房功能的需求。
× 餐廳部分比較局促,活動受限。
方案一
增加收納,書房做多功能房

思路解析
1 利用可利用的空間做收納柜,最大限度擴大儲藏空間。
2 增設多功能房,可書房可客臥,可活動增加可變性
3 臥室做L型衣柜,增加儲藏。
效果圖展示



方案二
餐島一體設計+功能性套臥

思路解析
1 餐廳在提升視覺空間的同時,考慮充足存儲空間,并且打造了島臺,功能豐富多彩。
2 把陽臺和次臥打通,增加次臥使用面積,原來陽臺也夠三口之家使用。
3 主臥和書房打通,形成了一個功能齊全、開闊舒適的套臥,書房也囊括了步入式衣帽間的功能。
效果圖展示



116㎡戶型解析

△原始結構圖
戶型優點
√ 采光通風好。
√ 戶型功能區域劃分清晰。
√ 空間利用程度高。
戶型缺點
× 廚房空間較小,難以滿足當代人對于廚房功能的需求。
× 臥室尺寸較小,收納不充足。
× 餐廳位置局促,活動受限。
方案
多功能衣帽間+奢華套臥

思路解析
1 客廳與陽臺聯通,增大會客區域。。
2 開放式廚房,提升視覺空間同時提高存儲能力。
3 北面次臥改造成一個集書房與衣帽間為一體的多功能房,納入主臥,形成一個開闊舒適的大套間,極大程度提高生活品質。
效果圖展示


122㎡戶型解析

△原始結構圖
戶型優點
√ 戶型比較方正,南北通透,采光通風俱佳。
√ 動靜區劃分清晰,動線合理。
√ 承重墻較少,可改動地方較大。
戶型缺點
× 廚房較小,難以滿足當代人對于廚房功能的需求。
× 餐廳如果按常規的酒柜或餐邊柜設計,會導致動線擁擠。
方案一
獨立廚房+西廚臺增加收納

思路解析
1 客廳陽臺打通,增大視覺空間。
2 廚房外部增設西廚臺,增加廚房電器的收納。
3 擴大主臥空間,做一排衣柜,增加主臥收藏空間。
4 衛生間做成干濕分離的設計,提升衛浴體驗感。
效果圖展示



方案二
開放式廚房+多功能書房

思路解析
1 一間次臥做多功能房間,可以做客房也可以做書房。
2 衛生間做三分離布局,單獨面盆,馬桶與淋浴間做玻璃移門。
3 廚房做開放式設計,增加廚房操作臺面。
效果圖展示


130㎡戶型解析

△原始結構圖
戶型優點
√ 大陽臺采光通風好。
√ 動靜分區功能區域劃分清晰。
√ 空間利用程度高。
戶型缺點
× 廚房空間小,難以滿足當代人對于廚房的功能需求。
× 入戶較窄,活動受限。
× 次臥較小,收納不足。
方案一
開闊的LDK+陽臺一體設計

思路解析
1 客廳與陽臺聯通,增加會客區域,提升大氣視覺。
2 重點規劃廚房與餐廳,采用開放式廚房設計,延長廚房操作臺面。
3 兩房打通,設置衣帽間。
效果圖展示



方案二
舒適三房,適合多人口家庭

思路解析
1 客廳與陽臺聯通,增加會客區域,提升大氣視覺。
2 主臥衣柜L型衣柜,增加儲藏空間。
3 獨立廚房設計,隔絕油煙,符合中式做飯環境。
效果圖展示


140㎡戶型解析

△原始結構圖
戶型優點
√ 南北通透,采光和通風好。
√ 戶型功能區域劃分清晰。
戶型缺點
× 廚房面積較小,操作不便。
× 餐廳面積較小,活動空間受限。
方案
時髦餐島+去客廳化設計

思路解析
1 通體背景柜處理,解決儲物量和儲物分類。
2 餐桌連接島臺一體設計,實用也潮流。
3 廚房雙向聯動門,可開放可封閉,防油煙也可拓展空間視覺。
4 書房客廳一體,外加連體陽臺,更廣闊的家庭互動空間。
效果圖展示



小區:武漢城建·電建·幸福時代大家
戶型:97㎡;110㎡;116㎡;132㎡;143㎡

幸福時代大家項目坐擁后湖大道與解放大道黃金雙主軸,周邊季佳·薈與漢口城市廣場,新生活摩爾城、華林廣場也咫尺可達,繽紛配套持續給居民生活賦能。
為了給幸福時代大家的業主帶來更好的生活體驗,澳華裝飾的設計師全面解析建面97-143㎡的戶型方案。從居住者出發,從場景入手,平衡視覺效果與居住功能,擴展生活秩序!
97㎡戶型解析

△原始結構圖
戶型優點
√ 戶型方正,功能齊全,空間利用率較高。
√ 動靜分離,休閑區待客區與休息區各自分開,隱私性好,動線合理。
戶型缺點
× 開發商連廊設計結構,導致廚房及衛生間采光較暗。
× 廚房與餐廳之間為承重墻,戶型結構可改造空間不大。
方案
舒適三房,滿足多人口家庭需求

思路解析
1 入戶處以鞋柜+餐邊柜+電視柜為一體,在滿足家里超大儲物的同時立面上整體性更大氣。
2 保留原始結構,舒適三房滿足三代同堂的家庭。
3 客廳與餐廳一體設計,空間更加開闊通透。
效果圖展示



110㎡戶型解析

△原始結構圖
戶型優點
√ 戶型方正,采光和通風都較好。
√ 功能區域劃分清楚。
√ 客廳和餐廳面積較大,空間開闊。
戶型缺點
× 廚房面積較小,活動受限。
× 其中一間臥室面積較小。
方案
舒適套臥+多功能書房

思路解析
1 將主衛納入主臥,并設置L型衣柜,補充收納,形成一個功能齊全、舒適便捷的私人空間。
2 面積較小的一間次臥做多功能房,集衣帽間、書房、休息功能為一體。
效果圖展示


116㎡戶型解析

△原始結構圖
戶型優點
√ 采光通風都很不錯。
√ 戶型功能區域劃分清晰。
√ 有一個開闊明亮的大陽臺。
戶型缺點
× 廚房面積較小,活動受限。
× 大框架剪力墻結構固定,只能做小調整。
方案
收納充足的多功能房+舒適套臥

思路解析
1 客餐廳一體化設計,提升視覺空間的同時,考慮充足存儲空間,并且打造了島臺及對窗吧臺,功能豐富多彩。
2 獨立書房設計,并設置一整墻書柜,收納充足。靠窗打造休閑區,形成一個集辦公、休閑、收納為一體的多功能區域。
3 主衛納入主臥,形成私密、便捷的舒適套臥。
效果圖展示


132㎡戶型解析

△原始結構圖
戶型優點
√ 入戶門朝向正東,陽臺都是南北朝向,通風效果非常不錯。
√ 戶型方正,動線合理。
√ 客餐廳面積較大,活動舒展。
√ 擁有開闊的觀景大陽臺。
戶型缺點
× 客衛空間較小。
× 原始戶型利用率不高。
方案
開闊明亮的客餐一體+舒適三房

思路解析
1 客廳與陽臺聯通,增大會客區域,提升大氣視覺。
2 客廳餐廳一體化設計,提升視覺空間的同時,增強了家人之間的生活互動。
3 入戶做一排玄關收納柜,增加入戶儀式感和收納空間。
4 保留三房設計,滿足多人口家庭需求。
效果圖展示


143㎡戶型解析

△原始結構圖
戶型優點
√ 采光和通風非常好,空間明亮通透。
√ 戶型功能區域劃分清晰,空間利用率高。
√ 客廳、餐廳面積較大,還擁有開闊的大陽臺。
√ 三間房大小較均勻,滿足多人口居住。
戶型缺點
× 廚房區域空間太小,活動受限。
方案
開放式廚房+靠窗休閑吧臺

思路解析
1 開放式廚房設計,解決了廚房面積較小的問題。同時連接了餐廳,縮短了動線。
2 餐廳增設西廚,補充廚房收納。同時靠窗做了一排吧臺,集辦公、休閑、觀景為一體。
3 客衛做干濕分離,洗手臺盆挪到外面,同時做雙臺盆設計,方便多人同時使用。
4 主衛隔出辦公區域,功能更加強大。
效果圖展示


知精準報價 避裝修深坑
選擇您喜歡的風格
現代輕奢
現代美式
北歐
新中式
歐式
其他
知精準報價 避裝修深坑
選擇房屋面積區間
您的戶型
兩居室
三居室
四居室
五居室
六居室
知精準報價 避裝修深坑
稍等片刻,您的報價正在生中......
知精準報價 避裝修深坑
每日僅限前10名用戶