小區:武漢城建·電建·幸福時代大家
戶型:97㎡;110㎡;116㎡;132㎡;143㎡

幸福時代大家項目坐擁后湖大道與解放大道黃金雙主軸,周邊季佳·薈與漢口城市廣場,新生活摩爾城、華林廣場也咫尺可達,繽紛配套持續給居民生活賦能。
為了給幸福時代大家的業主帶來更好的生活體驗,澳華裝飾的設計師全面解析建面97-143㎡的戶型方案。從居住者出發,從場景入手,平衡視覺效果與居住功能,擴展生活秩序!
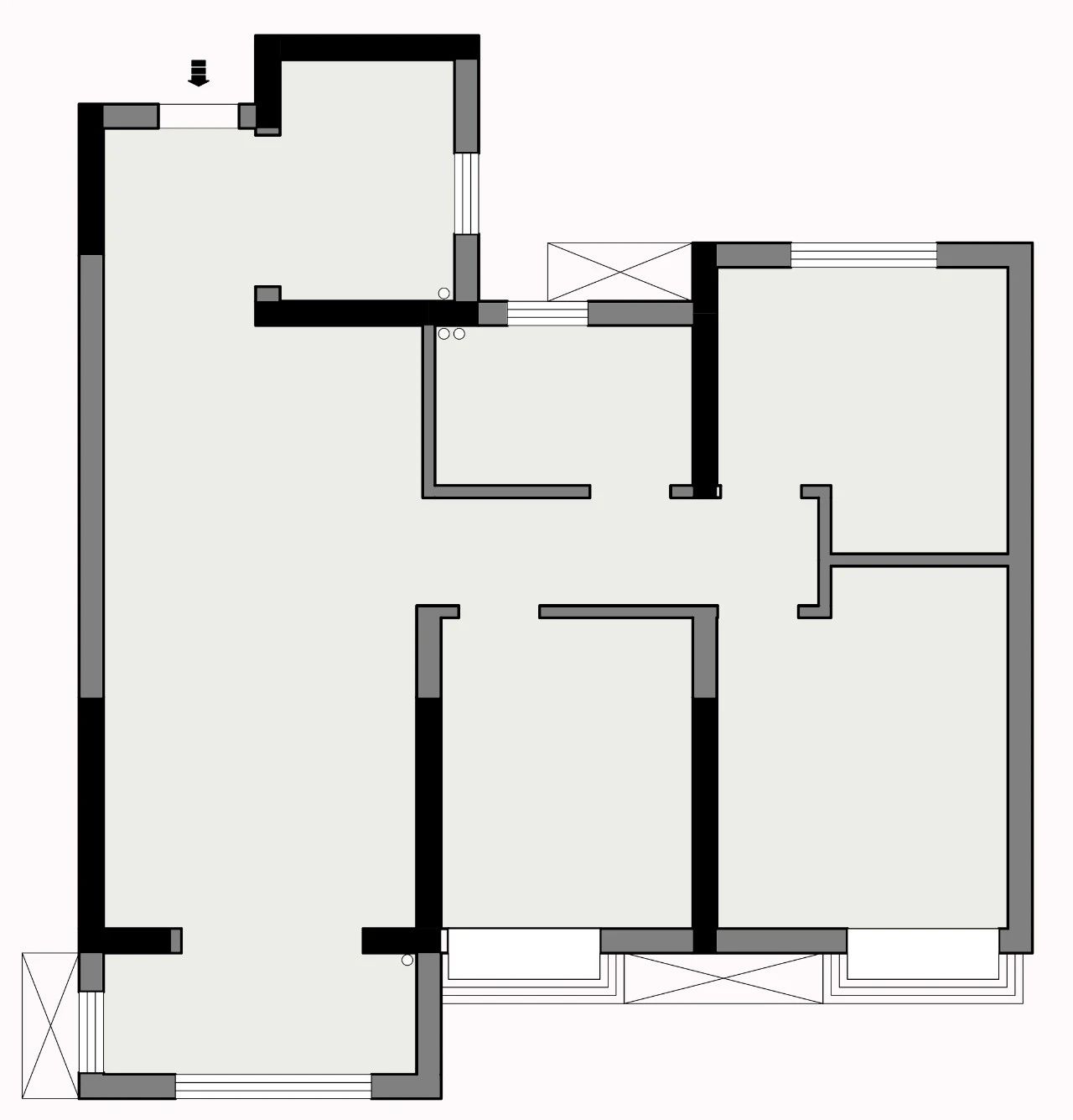
97㎡戶型解析

△原始結構圖
戶型優點
√ 戶型方正,功能齊全,空間利用率較高。
√ 動靜分離,休閑區待客區與休息區各自分開,隱私性好,動線合理。
戶型缺點
× 開發商連廊設計結構,導致廚房及衛生間采光較暗。
× 廚房與餐廳之間為承重墻,戶型結構可改造空間不大。
方案
舒適三房,滿足多人口家庭需求

思路解析
1 入戶處以鞋柜+餐邊柜+電視柜為一體,在滿足家里超大儲物的同時立面上整體性更大氣。
2 保留原始結構,舒適三房滿足三代同堂的家庭。
3 客廳與餐廳一體設計,空間更加開闊通透。
效果圖展示



110㎡戶型解析

△原始結構圖
戶型優點
√ 戶型方正,采光和通風都較好。
√ 功能區域劃分清楚。
√ 客廳和餐廳面積較大,空間開闊。
戶型缺點
× 廚房面積較小,活動受限。
× 其中一間臥室面積較小。
方案
舒適套臥+多功能書房

思路解析
1 將主衛納入主臥,并設置L型衣柜,補充收納,形成一個功能齊全、舒適便捷的私人空間。
2 面積較小的一間次臥做多功能房,集衣帽間、書房、休息功能為一體。
效果圖展示


116㎡戶型解析

△原始結構圖
戶型優點
√ 采光通風都很不錯。
√ 戶型功能區域劃分清晰。
√ 有一個開闊明亮的大陽臺。
戶型缺點
× 廚房面積較小,活動受限。
× 大框架剪力墻結構固定,只能做小調整。
方案
收納充足的多功能房+舒適套臥

思路解析
1 客餐廳一體化設計,提升視覺空間的同時,考慮充足存儲空間,并且打造了島臺及對窗吧臺,功能豐富多彩。
2 獨立書房設計,并設置一整墻書柜,收納充足。靠窗打造休閑區,形成一個集辦公、休閑、收納為一體的多功能區域。
3 主衛納入主臥,形成私密、便捷的舒適套臥。
效果圖展示


132㎡戶型解析

△原始結構圖
戶型優點
√ 入戶門朝向正東,陽臺都是南北朝向,通風效果非常不錯。
√ 戶型方正,動線合理。
√ 客餐廳面積較大,活動舒展。
√ 擁有開闊的觀景大陽臺。
戶型缺點
× 客衛空間較小。
× 原始戶型利用率不高。
方案
開闊明亮的客餐一體+舒適三房

思路解析
1 客廳與陽臺聯通,增大會客區域,提升大氣視覺。
2 客廳餐廳一體化設計,提升視覺空間的同時,增強了家人之間的生活互動。
3 入戶做一排玄關收納柜,增加入戶儀式感和收納空間。
4 保留三房設計,滿足多人口家庭需求。
效果圖展示


143㎡戶型解析

△原始結構圖
戶型優點
√ 采光和通風非常好,空間明亮通透。
√ 戶型功能區域劃分清晰,空間利用率高。
√ 客廳、餐廳面積較大,還擁有開闊的大陽臺。
√ 三間房大小較均勻,滿足多人口居住。
戶型缺點
× 廚房區域空間太小,活動受限。
方案
開放式廚房+靠窗休閑吧臺

思路解析
1 開放式廚房設計,解決了廚房面積較小的問題。同時連接了餐廳,縮短了動線。
2 餐廳增設西廚,補充廚房收納。同時靠窗做了一排吧臺,集辦公、休閑、觀景為一體。
3 客衛做干濕分離,洗手臺盆挪到外面,同時做雙臺盆設計,方便多人同時使用。
4 主衛隔出辦公區域,功能更加強大。
效果圖展示


知精準報價 避裝修深坑
選擇您喜歡的風格
現代輕奢
現代美式
北歐
新中式
歐式
其他
知精準報價 避裝修深坑
選擇房屋面積區間
您的戶型
兩居室
三居室
四居室
五居室
六居室
知精準報價 避裝修深坑
稍等片刻,您的報價正在生中......
知精準報價 避裝修深坑
每日僅限前10名用戶