小區:中建福地星城
戶型:90㎡;108㎡;113㎡;121㎡;123㎡;140㎡

中建福地星城周邊環伺中南商圈、街道口商圈、南湖商圈三大商圈,吃喝玩樂購一站式盡享,步履間領享城市前沿潮流生活,賦予生活上乘享受。
為了給中建福地星城的業主帶來更好的生活體驗,澳華裝飾的設計師全面解析建面90-140㎡的戶型方案。從居住者出發,從場景入手,平衡視覺效果與居住功能,擴展生活秩序!
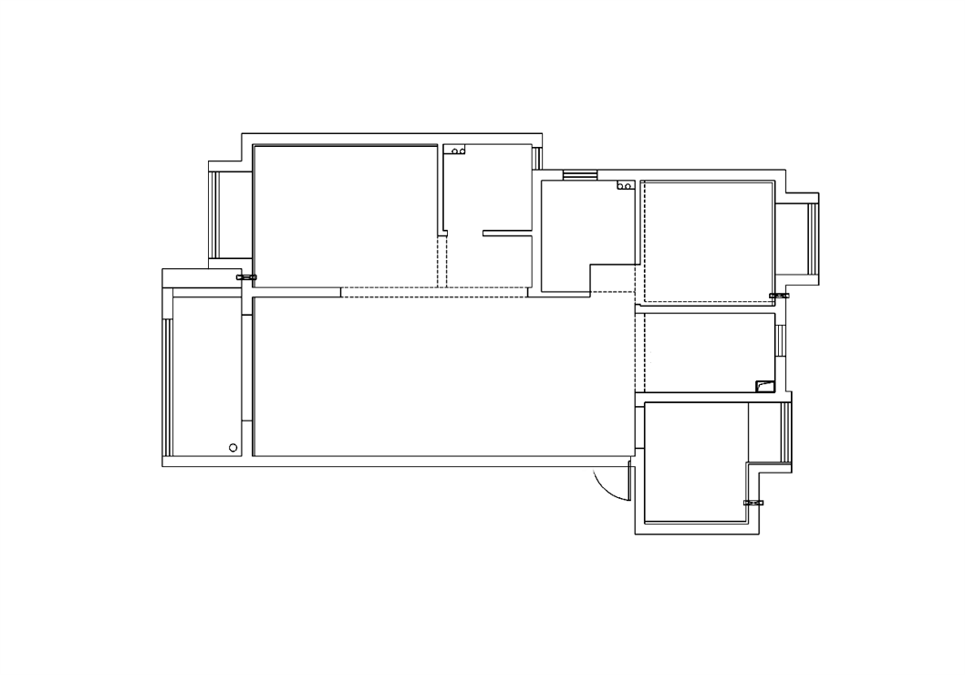
90㎡戶型解析

△原始結構圖
戶型優點
√ 客廳采光好,通風好,空間明亮通透。
√ 入戶門廳寬敞,格局大方。
√ 過道較少,空間利用率高。
戶型缺點
× 客廳面積較小,活動范圍有限。
× 次臥面積較小,收納空間不足。
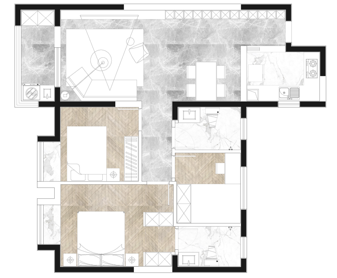
方案一
無玄關,保證空間通透性

思路解析
1 門廳不設置玄關,從入戶到陽臺空間都聯通。最大程度打開視覺,也增強了各個空間的互動性。
2 鞋柜酒柜做成連體通長,視覺延伸感好,顯得空間大。
效果圖展示


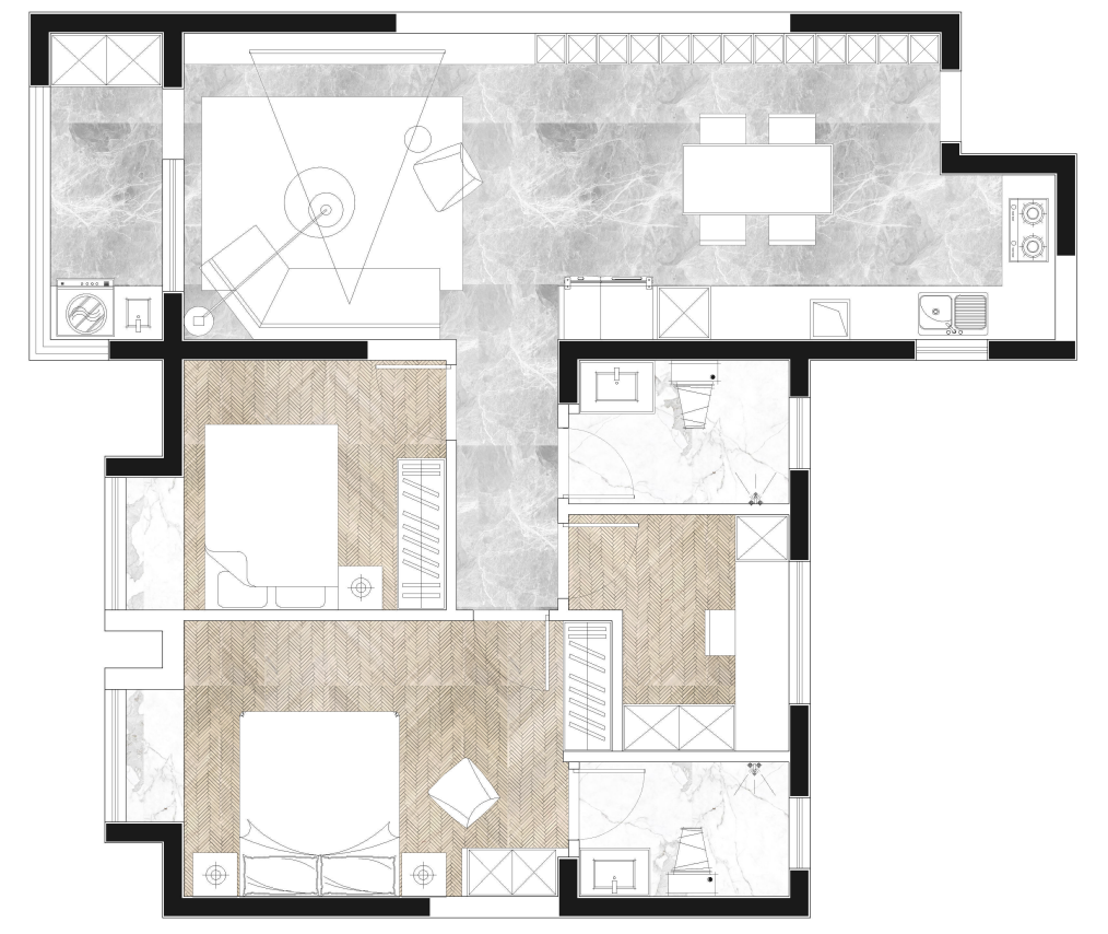
方案二
入戶設置玄關,私密性好

思路解析
1 門廳設置玄關,視線有遮擋,客廳私密性更好,空間層次也更豐富。
2 次臥做成多功能房,空間利用率高。
效果圖展示


108㎡戶型解析

△原始結構圖
戶型優點
√ 客廳及主次臥朝南,采光和通風都較好。
√ 戶型功能區域劃分清楚。
戶型缺點
× 餐廳面積較小。
× 兩個次臥面積較小。
× 入戶面積較小,收納空間有限。
方案一
延伸客廳+保留三房

思路解析
1 客廳與陽臺聯通,增大會客區域。
2 獨立廚房,隔絕油煙。
3 保留三房,設置多功能房,滿足多人口家庭需求。
4 主臥L型衣帽間,增加收納空間。
效果圖展示



方案二
開放式廚房+輕奢套臥

思路解析
1 客廳與陽臺聯通,增大會客區域。
2 開放式廚房,增加空間的互動性。
3 主臥套房,增加收納,提升生活品質。
4 飄窗拆除,整體利用增加收納。
效果圖展示



113㎡戶型解析

△原始結構圖
戶型優點
√ 采光通風都很不錯。
√ 三房兩廳,能夠滿足一家五口的居住需求。
√ 戶型功能區域劃分清楚。
戶型缺點
× 廚房面積較小。
× 次臥面積較小。
方案一
客廳陽臺聯通+保留三房

思路解析
1 客廳與陽臺打通,增大視覺空間以及亮度。
2 保留三房,滿足多人口家庭的居住需求。
效果圖展示


方案二
開放式廚房+獨立書房

思路解析
1 拆除部分墻體,玄關連接餐廚,做開放式廚房。
2 客廳打通陽臺,南北通透兩面采光。
3 主臥向書房外擴,擴大主臥空間。
效果圖展示


121㎡戶型解析

△原始結構圖
戶型優點
√ 客餐廳一體,形成一個大開間。
√ 三房兩廳,能夠滿足多人口家庭的居住需求。
√ 公區視距寬闊,可塑性強。
戶型缺點
× 臥室尺寸較小,收納空間有限。
× 主臥室功能不齊全。
× 次衛生間分區不合理。
方案
聯通公區,利用過道增設衣帽間

思路解析
1 客廳陽臺餐廳都聯通,增大視覺空間及亮度。
2 主臥室增設衣帽間,強大儲物。
3 小臥室定制尺寸,滿足所有功能的需求。
4 隱蔽客衛生原有尷尬的開門方向。
5 用大板塊材質一體化劃分區域。
效果圖展示



123㎡戶型解析

△原始結構圖
戶型優點
√ 采光和通風非常好,空間明亮通透。
√ 戶型功能區域劃分清晰。
戶型缺點
× 生活陽臺不清晰。
× 臥室尺寸不大。
方案一
開闊公區+保留三房

思路解析
1 客廳與餐廳、陽臺聯通,增大會客區域,拉伸視覺,增加透視感。
2 主衛納入主臥,形成一個便捷舒適的套間。
3 次衛做干濕分離,方便多人同時使用。
4 保留三房,滿足多人口家庭的居住需求。
效果圖展示


方案二
主衛采用干濕分離

思路解析
1 餐廳、客廳、陽臺采用一體化設計,增大視覺空間,增加了互動性。
2 次衛采用干濕分離,提升衛生間的體驗感。
3 一間次臥做多功能房,提升空間利用的多樣性。
效果圖展示


140㎡戶型解析

戶型優點
√ 邊戶四室兩衛的房子,三面采光,南北通透。
√ 戶型較方正,動靜分區明確,利用率最大。
√ 飄窗可以拆除,增大室內空間面積。
戶型缺點
× 承重墻較多。
× 客臥較小。
方案一
超大套臥+開闊公區

思路解析
1 陽臺并入客廳,增大視覺空間,增強了互動性。
2 一間次臥改為超大衣帽間,L型衣櫥收納強大。
3 衣帽間與主衛一起包進主臥,形成功能強大的套間。
4 次衛做干濕分離,提升生活便捷度。
效果圖展示


方案二
實用四房,滿足多人口需求

思路解析
1 陽臺并入客廳,增大視覺空間,增強了互動性。
2 三臥室+一書房設置,滿足多人口家庭需求。
3 主臥借用次臥空間做步入式衣帽間,增加收納。
4 次衛做干濕分離,提升生活便捷度。
效果圖展示


知精準報價 避裝修深坑
選擇您喜歡的風格
現代輕奢
現代美式
北歐
新中式
歐式
其他
知精準報價 避裝修深坑
選擇房屋面積區間
您的戶型
兩居室
三居室
四居室
五居室
六居室
知精準報價 避裝修深坑
稍等片刻,您的報價正在生中......
知精準報價 避裝修深坑
每日僅限前10名用戶