案例簡介:本案例的業主對于生活品質有著比較高的追求,因此希望所打造出來的別墅空間能夠具有高級的品質感。業主提出,自己不喜歡各種華麗造型打造的別墅空間,這不僅僅容易造成視覺壓迫感,整個還給人張揚感。因此,設計師為業主選擇了現代輕奢風進行軟裝,整體呈現高級品質感而又不顯得刻意且張揚,在無形中展示主人的高雅品味。
戶型解析:

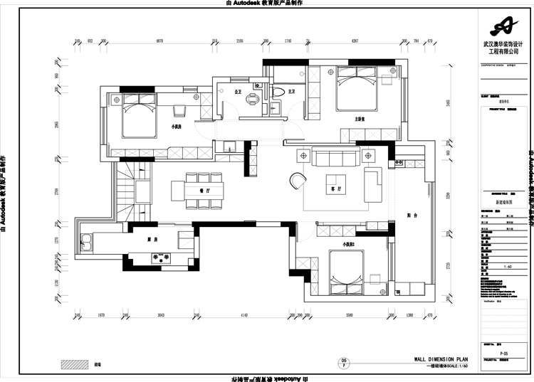
軍運村這套300㎡的復式別墅空間十分寬敞,且南北通透,帶有南向大陽臺,整體戶型優勢較為明顯。因此設計師在進行規劃設計的時候,充分利用了空間的優勢,借助各種大面積窗戶的設計,提升室內采光。為了擴大陽臺空間,提升家居品質,設計師將客廳的陽臺與臥室陽臺直接打通,將整個陽臺空間改造成視角極佳的觀賞區,便于業主與家人觀賞室外美景。
客廳:


客廳區域借助莫蘭迪色系進行裝飾,強調一種朦朧的優雅氛圍。
廚房:

簡約的黑白配色耐看又經典,大理石瓷磚鋪設的地板則在無形中提升空間檔次感。
臥室:




不同深度的藍色組合讓臥室區域的結構感更加明顯,閱讀外面與衣柜的銜接處理則讓空間融合感更加強烈。
知精準報價 避裝修深坑
選擇您喜歡的風格
現代輕奢
現代美式
北歐
新中式
歐式
其他
知精準報價 避裝修深坑
選擇房屋面積區間
您的戶型
兩居室
三居室
四居室
五居室
六居室
知精準報價 避裝修深坑
稍等片刻,您的報價正在生中......
知精準報價 避裝修深坑
每日僅限前10名用戶