案例簡介:對于空間氣質的表達是一門藝術,本案例的餐廳呈現暗色系的現代感官,這里沒有喋喋不休 寧靜有增長心靈的力量,似乎能讓人感知優雅的存在。整個家居空間則以原木色與白色為主體,拾取飽和度較低的灰黑色系點綴,讓整個空間在舒適簡單中隱隱散發高級的質感。
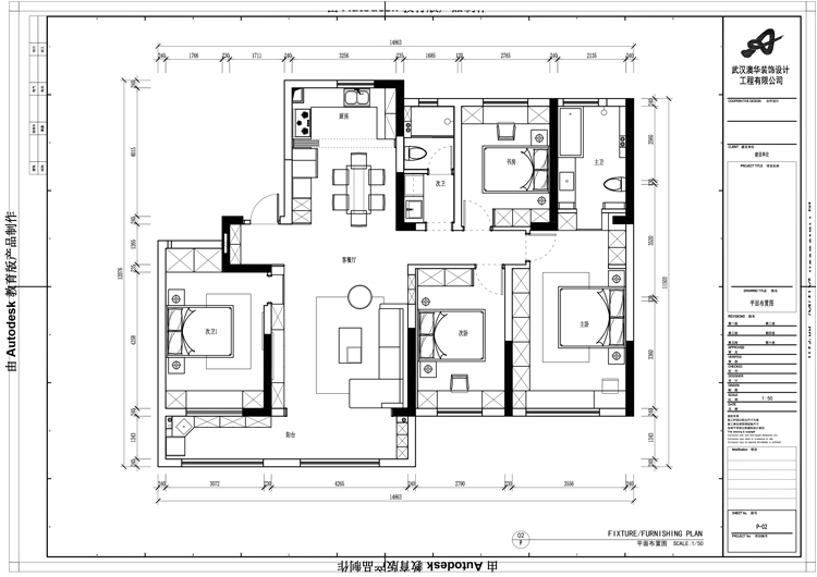
戶型解析:

藕色墻面搭配上細線條處理,給人精致的優雅感。弧線形的沙發搭配上圓形茶幾,營造柔和的自然舒適感。
客廳:


由灰色與藕粉色打造的餐椅給人簡約又柔和的視覺效果,搭配上白色背景墻,營造清新自然美感。
餐廳:

由灰色與藕粉色打造的餐椅給人簡約又柔和的視覺效果,搭配上白色背景墻,營造清新自然美感。
臥室:

通過不同深度色彩打造的背景墻結構感十足,同時在色彩較濃的背景墻區域設置梳妝臺,起到視覺分隔作用。
知精準報價 避裝修深坑
選擇您喜歡的風格
現代輕奢
現代美式
北歐
新中式
歐式
其他
知精準報價 避裝修深坑
選擇房屋面積區間
您的戶型
兩居室
三居室
四居室
五居室
六居室
知精準報價 避裝修深坑
稍等片刻,您的報價正在生中......
知精準報價 避裝修深坑
每日僅限前10名用戶