案例簡介:作為一個即將迎來二胎的家庭,業主希望能夠將空間中預留出足夠的親子互動空間與學習空間。再者由于業主夫婦兩人工作性質的原因,用于起居打掃的時間也相對比較有限,因此希望設計師能夠從簡潔的角度出發進行規劃設計,同時也需要展示一定的時尚感與品質感。因此設計師選擇了相對比較簡潔耐看而又自帶貴族氣息的現代輕奢風,搭配以各種質感元素進行裝飾。
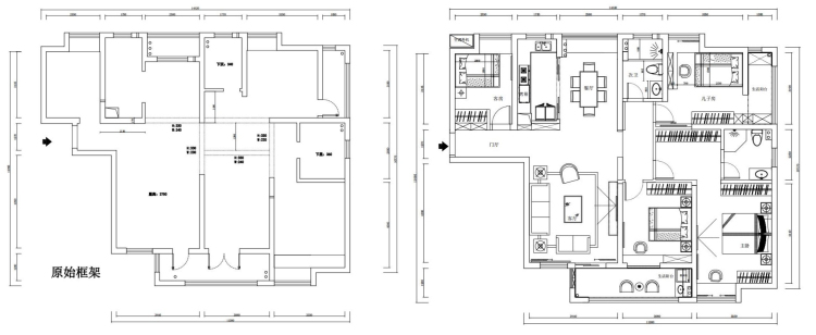
戶型解析:

荷景苑這套162平方米的四居室住宅可利用設計面積較廣,原有的戶型結構也基本能夠滿足現有家庭成員起居需求。不過業主提出,未來還會迎接一個寶寶,因此設計師在進行空間設計的時候預留出一個足夠的空間,確保兩個孩子都能夠擁有自己的獨立空間。而整體軟裝上,設計師則為業主們選擇了相對比較經典耐看的輕奢風,確保整個室內空間易于打掃。
客廳:




帶有天然清冷氣息的大理石材質搭配上造型簡單的吊燈,簡約而又耐看,日常打理也相對比較容易。
餐廳:

大面積的灰色大理石搭配上白色餐座椅,簡約中透露著一股高級格調韻味。由簡約掛畫打造的背景墻清新而又藝術感十足。
知精準報價 避裝修深坑
選擇您喜歡的風格
現代輕奢
現代美式
北歐
新中式
歐式
其他
知精準報價 避裝修深坑
選擇房屋面積區間
您的戶型
兩居室
三居室
四居室
五居室
六居室
知精準報價 避裝修深坑
稍等片刻,您的報價正在生中......
知精準報價 避裝修深坑
每日僅限前10名用戶