案例簡介:本案例的家庭為幸福的五口之家,除了業主夫妻二人外還有業主的父母與孩子,因此業主希望設計師能夠根據不同家庭成員的需求對空間進行合理的規劃與設計,以提升起居幸福感。而在與所有家庭成員進行一定交流溝通后,設計師折中選擇了認可度比較高的現代輕奢風作為空間主裝修基調,而色彩的選擇上則以簡潔素雅為主,這樣相對比較耐看且易于打掃。
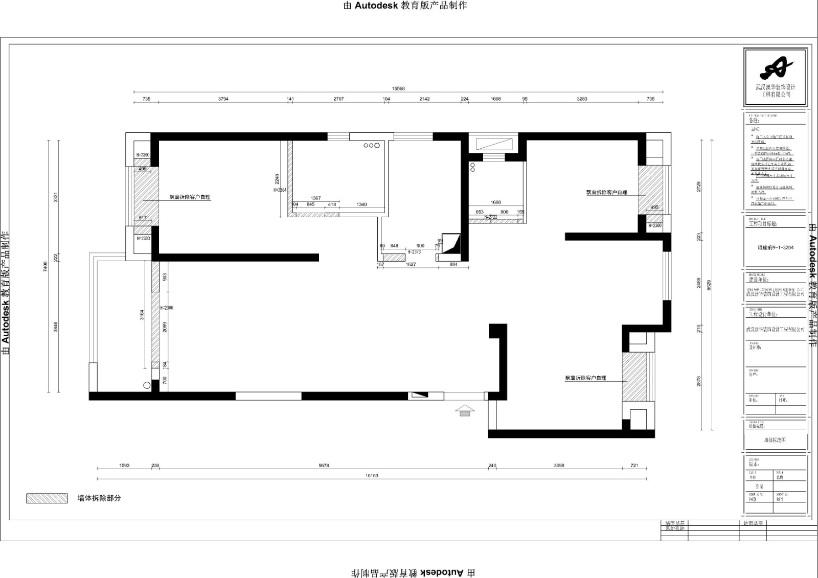
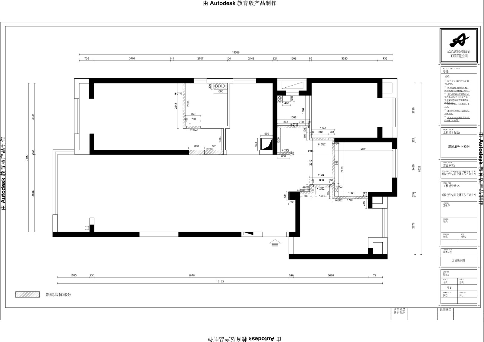
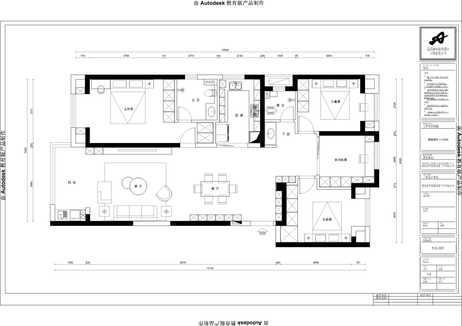
戶型解析:





這套位于琨瑜府的四居室面積譽為158㎡,整體的戶型結構相對比較平整合理,且不存在各種犄角區域,因此設計師在進行空間規劃時沿用了原來的空間格局,同時借助各種不同的隔斷進行空間劃分,以提升整個家居空間的豐富感。而針對不同家庭成員的生活習慣與審美,不同臥室空間則有針對性的進行了個性化裝飾。
客廳:


嵌入式的照明燈具既可以滿足日常使用需求,又易于打理。圓形大理石茶幾簡約清新而又不失高級藝術感。
長輩房:

灰色墻面搭配上深灰色床體,簡約而又舒適,很好滿足老年群體審美需求,且能夠營造一個靜謐的氛圍,有助于提升睡眠質量。
主臥

墻面借助木材與水泥材質兩種不同的材料進行空間裝飾,簡約而又賦予空間結構變化美。
兒童房:

大面積的灰色搭配上小區域的原木色,簡約清新而又耐看。一體式收納柜既可以滿足物件歸置需求,又能滿足孩子學習使用需求。
知精準報價 避裝修深坑
選擇您喜歡的風格
現代輕奢
現代美式
北歐
新中式
歐式
其他
知精準報價 避裝修深坑
選擇房屋面積區間
您的戶型
兩居室
三居室
四居室
五居室
六居室
知精準報價 避裝修深坑
稍等片刻,您的報價正在生中......
知精準報價 避裝修深坑
每日僅限前10名用戶