案例簡介:本案例的業主是企業高管,工作壓力大的他希望能夠在休憩的閑暇時光盡情享受屬于自己的生活,因此希望設計師在設計的時候能夠盡量的往個性化、灑脫及舒適等方向靠。而設計師通過對業主生活習慣、喜好、家庭成員需求的了解,完成了本案例的設計。在裝修風格的選擇上,設計師選擇了個性感較強的美式風,希望能夠幫助業主在屬于自己的時光中感受到舒適和自由。
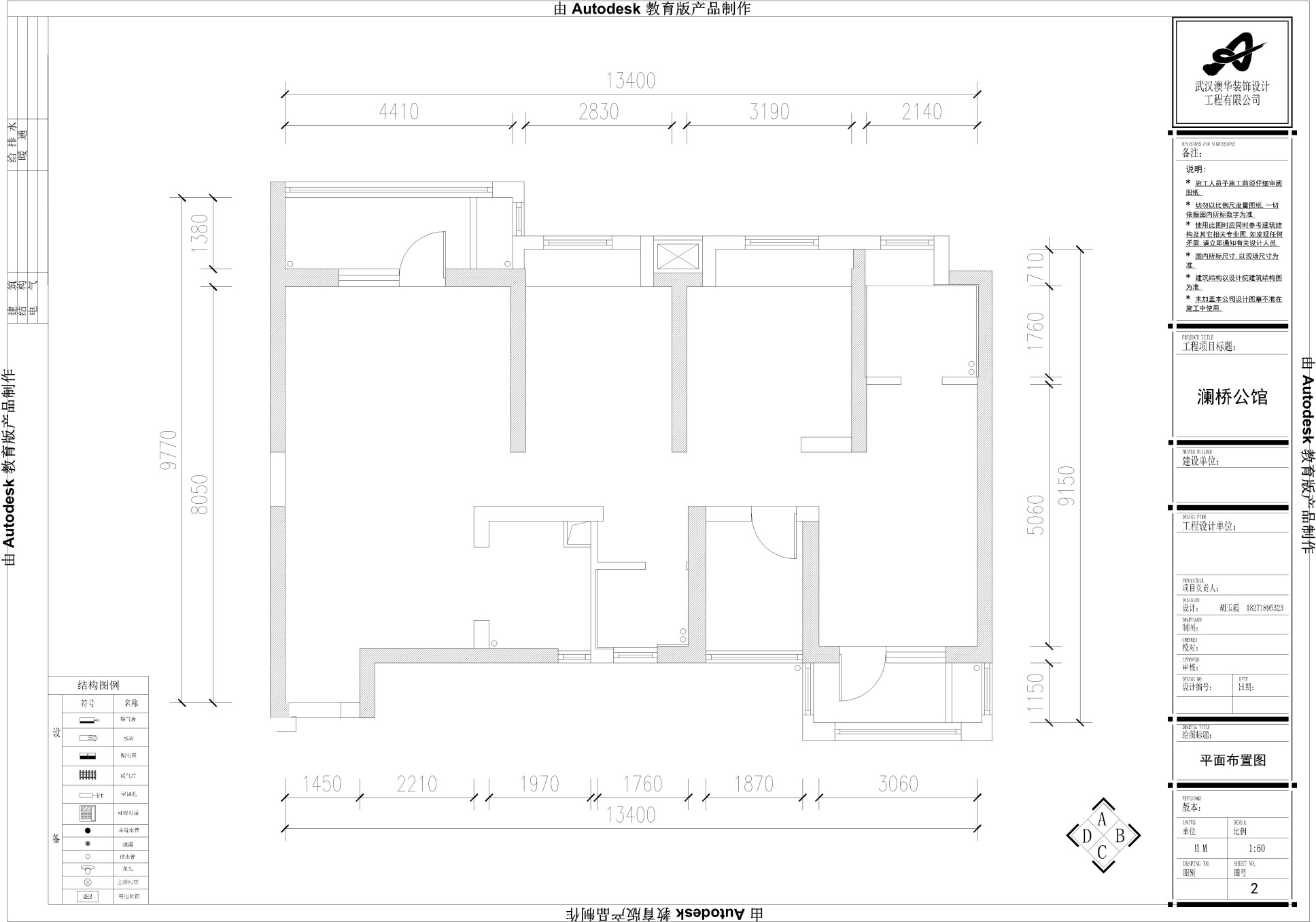
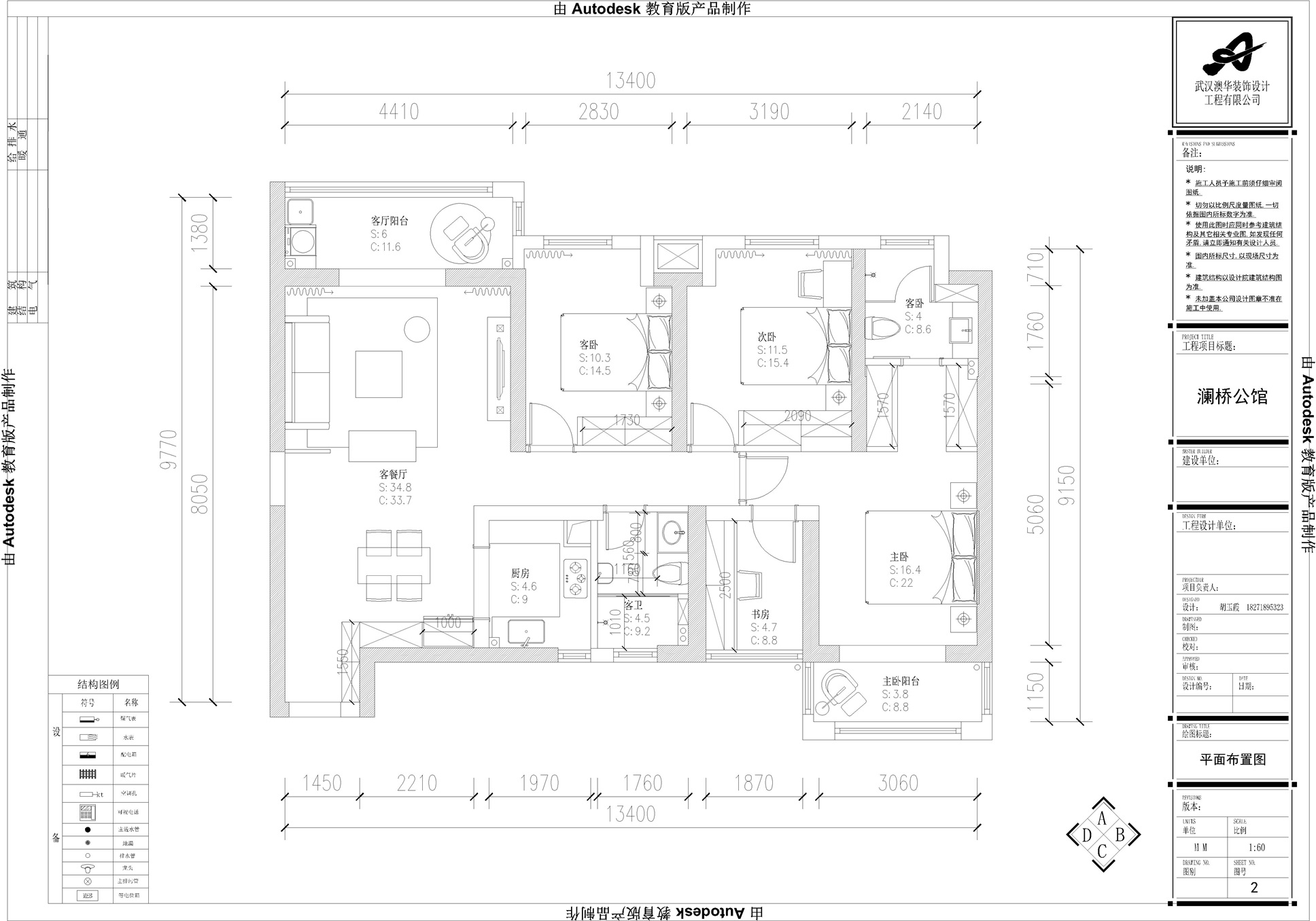
戶型解析:


這棟位于瀾橋公館A棟的137㎡四居室住宅戶型南北通透、采光較好,且位于高層,因此設計師在進行規劃設計的時候充分利用了房屋的戶型結構優勢,同時根據業主的需求進行空間的規劃整合,以將房屋呈現出舒適、個性的整體感觀。雖然房屋整體面積不小,但是由于業主家庭成員較多,所需劃分的休憩空間也比較多,因此設計時就需舍棄一些繁瑣的元素,以簡約大氣為主。
客廳:



白色大理石電視背景墻與沙發處碎花墻紙形成強烈碰撞,在碰撞中形成一種個性化的獨特美感。
餐廳:



胡桃木家具搭配上造型簡約的吊燈就構成了就餐區域的軟裝,整體造型簡約而又耐看,同時不會占用較多空間。
廚房:

廚房空間整體以白色為主基調色,避免大面積的深色造成視覺壓迫感。同時借助少量黑色點綴,提升空間豐富感。
衛生間:

衛生間區域考慮不同家庭成員的使用需求設置了兩個不同馬桶,以提升生活品質。和頭目的儲物柜搭配以浮雕處理,則讓整個衛生間環境更具格調感。
知精準報價 避裝修深坑
選擇您喜歡的風格
現代輕奢
現代美式
北歐
新中式
歐式
其他
知精準報價 避裝修深坑
選擇房屋面積區間
您的戶型
兩居室
三居室
四居室
五居室
六居室
知精準報價 避裝修深坑
稍等片刻,您的報價正在生中......
知精準報價 避裝修深坑
每日僅限前10名用戶