案例簡介:本案例的業主作為一個教師,對于傳統的中國文化有著濃厚的興趣,因此在與設計師交流的時候強烈的表達了自己對中式元素的喜愛。因此在本案例設計過程中,設計師為業主選用了經典的新中式風,同時借助各類質感元素的雜糅使用,演繹了一個復古而又不失摩登時尚氛圍的輕奢雅苑。簡約的線條、傳統的中式復古元素,讓家居空間呈現出豐富的層次與藝術的格調。
戶型解析:


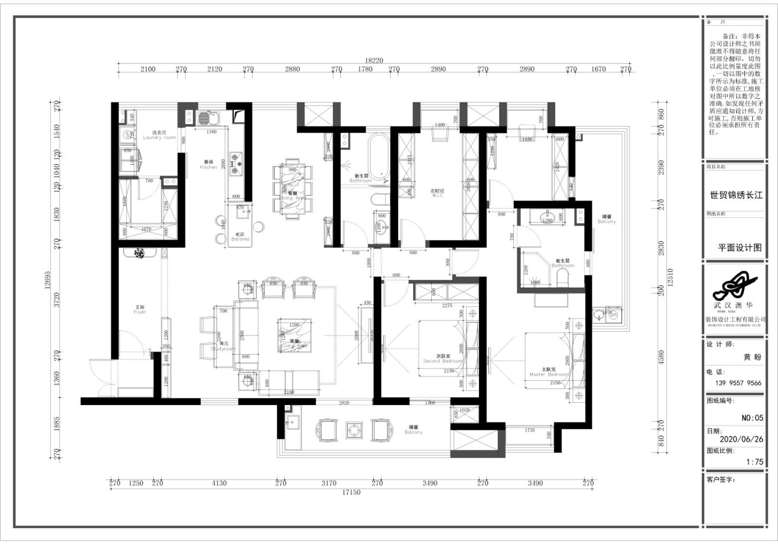
世茂錦繡長江這套四居室的住宅面積大約在220㎡左右,整個戶型結構十分方正平整,空間規劃沒有太大難度,設計師按照業主的需求將休憩空間設置在距離入戶門最遠的區域,以提升空間的私密感。同時,為滿足女主人的起居搭配使用需求,單獨劃分出一塊衣帽區域,以提升整體的生活品質。整個空間的軟裝使用了大量的中式元素,以強調復古典雅的輕奢優雅氣息。
玄關:

傳統中式圖案的地板搭配上韻味十足的清新山水畫,營造一種溫潤投河夫人優雅深邃氛圍,讓人一進門就領略到主人的高雅情調。
客廳:

清冷的灰色暗紋大理石地板搭配上方正的深褐色木質家具,強調沉穩大氣格調。對稱式的軟裝設計,則讓整個空間更顯優雅穩重氣息。
餐廳:

大面積的大理石瓷磚奠定了清冷通透的空間氛圍,搭配以質感溫潤的木材,有效提升了空間的視覺平衡感。
主臥:

大面積的山水畫配以對稱式設計,端莊而又不失典雅氣息。
衣帽間:

禪意地毯碰上木質衣柜,一種優雅的格調在空間中流淌。藝術的現代燈飾,則讓空間多了一抹時尚氣息。
知精準報價 避裝修深坑
選擇您喜歡的風格
現代輕奢
現代美式
北歐
新中式
歐式
其他
知精準報價 避裝修深坑
選擇房屋面積區間
您的戶型
兩居室
三居室
四居室
五居室
六居室
知精準報價 避裝修深坑
稍等片刻,您的報價正在生中......
知精準報價 避裝修深坑
每日僅限前10名用戶