做事認真
案例介紹:這套中建南湖壹號112㎡的新房是業主購置給老人退休養老使用,兩位老人常住,周末或假期自己會帶著孩子過來一起住,三房戶型剛好可以滿足這一需求。經過前期的溝通設計師了解到,二位老人不喜歡全實木家具,希望新中式風的新家里,以時尚簡單的家具為主,色彩切勿沉重,對空間收納有一定需求。
戶型解析

戶型方正,空間中柱子、橫梁與排污管道較少,通風面多,居住理想。客廳與餐廳一體銜接,并與其中一個臥室使用同一個陽臺,空間通風因此變得更好,另外,在三個臥室中,其中兩個臥室都帶有衛生間,日常使用十分方便。
玄關

為緩解進門見廳的尷尬局面,玄關處設計了實體半隔斷,掛畫裝飾后觀感非常棒;玄關柜采用嵌入式設計,立面干凈,為玄關空間贏出更多活動空間。
客廳

客廳采用新中式天花設計,在線條的勾勒下及中式燈具的點綴下,進一步擴大了客廳的通透感;沙發部分依業主需求,使用了現代白色沙發,搭配木質茶幾、電視地柜及新中式軟裝,令空間顯得更加輕盈。
臥室

臥室背景墻采用對稱的設計手法,中部通過時尚軟裝增加品質感,白色與藍色的床品搭配營造出滿滿的禪意感,呈現出古香古色的新中式氛圍。
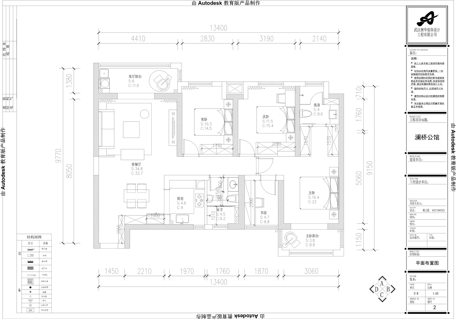
案例簡介:本案例的業主是企業高管,工作壓力大的他希望能夠在休憩的閑暇時光盡情享受屬于自己的生活,因此希望設計師在設計的時候能夠盡量的往個性化、灑脫及舒適等方向靠。而設計師通過對業主生活習慣、喜好、家庭成員需求的了解,完成了本案例的設計。在裝修風格的選擇上,設計師選擇了個性感較強的美式風,希望能夠幫助業主在屬于自己的時光中感受到舒適和自由。
戶型解析:


這棟位于瀾橋公館A棟的137㎡四居室住宅戶型南北通透、采光較好,且位于高層,因此設計師在進行規劃設計的時候充分利用了房屋的戶型結構優勢,同時根據業主的需求進行空間的規劃整合,以將房屋呈現出舒適、個性的整體感觀。雖然房屋整體面積不小,但是由于業主家庭成員較多,所需劃分的休憩空間也比較多,因此設計時就需舍棄一些繁瑣的元素,以簡約大氣為主。
客廳:



白色大理石電視背景墻與沙發處碎花墻紙形成強烈碰撞,在碰撞中形成一種個性化的獨特美感。
餐廳:



胡桃木家具搭配上造型簡約的吊燈就構成了就餐區域的軟裝,整體造型簡約而又耐看,同時不會占用較多空間。
廚房:

廚房空間整體以白色為主基調色,避免大面積的深色造成視覺壓迫感。同時借助少量黑色點綴,提升空間豐富感。
衛生間:

衛生間區域考慮不同家庭成員的使用需求設置了兩個不同馬桶,以提升生活品質。和頭目的儲物柜搭配以浮雕處理,則讓整個衛生間環境更具格調感。
案例簡介:
歐式風多使用于大戶型房屋裝修設計,因為該風格需使用到各類精雕細琢的裝飾元素,如若空間面積較小,就會讓房屋看起來過于壓抑。而本案例的業主則偏愛歐式風,如何將112㎡的房屋打造出帶有歐式貴族典雅氣息的豪宅就是本次的設計難題。而這次設計師則根據業主的喜好,選擇了帶有歐式風典雅復古美而又不會對空間體量要求過大的簡歐風進行裝飾,通過舍棄大量復雜的肌理與裝飾來營造一種清新的歐式風情。
戶型解析:

中建南湖壹號這套112㎡的三居室住宅戶型相對比較緊湊,且原有格局沒有較大缺陷,只是入戶玄關的面積較小,難以起到該有的效果。因此設計師在設計時,選擇保留原有的空間結構,同時利用一些色彩、油畫的元素來點綴入戶玄關,以提升玄關區域的美感。同時,借助大面積的窗戶將室外的陽光與景色引入室內,從視覺上起到擴大空間的作用,讓整個家居空間更顯高級韻味。
玄關:

為了讓不大的玄關看起來更加的精致,設計師借助一面藝術半隔斷墻進行裝飾,避免室內景象直接映入來者眼中,有效提升了空間的私密感與韻味感。而玄關側面出的收納柜設計,則有效提升了空間利用率。
客廳:

客廳區域保留了歐式風最為常見的用色,既經典暖黃色,通過暖黃色與深棕色的搭配來營造一種渾厚而又溫馨的復古典雅韻味。而家具則選擇了造型相對比較簡約且色彩素雅的白色沙發,以提升空間的大氣感。
臥室:

臥室空間需強調寧靜的氛圍感,因此設計師在對臥室區域進行設計的時候使用了光線相對比較柔和的燈具,以強調靜謐感。而床頭處的簡約藝術掛件則讓整個臥室空間多了一抹自然的氣息美。
知精準報價 避裝修深坑
選擇您喜歡的風格
現代輕奢
現代美式
北歐
新中式
歐式
其他
知精準報價 避裝修深坑
選擇房屋面積區間
您的戶型
兩居室
三居室
四居室
五居室
六居室
知精準報價 避裝修深坑
稍等片刻,您的報價正在生中......
知精準報價 避裝修深坑
每日僅限前10名用戶