今日股市推荐排名-热点股票指标公式-【东方资本】,如何股票做空,可靠的股票配资平台是哪个,股票开通t 0最简单三个步骤

24小時咨詢電話
027-82411111
當前位置:首頁 > 家裝資訊 > 裝修攻略 > 衛生間對門怎么辦
衛生間對門怎么辦
發布時間 : 2021-07-20 10:49
來源 :
查看數 :

衛生間對門在商品房型中比較普遍,也是許多業主在意的問題。想要改善這個問題 ,方法還是很多的,下面就跟著武漢知名裝修公司澳華裝飾一起來看看。

?

武漢知名裝修公司澳華裝飾指出,衛生間對門的話,可以通過改變開門方向、增加隔斷、弱化視覺效果等方法來改善。

?

一、弱化視覺效果

?

洗手盆外置,減少進出衛生間的頻率,提高了衛生間的使用率,改成推拉門還可以一定程度弱化視覺效果。


武漢知名裝修公司
?

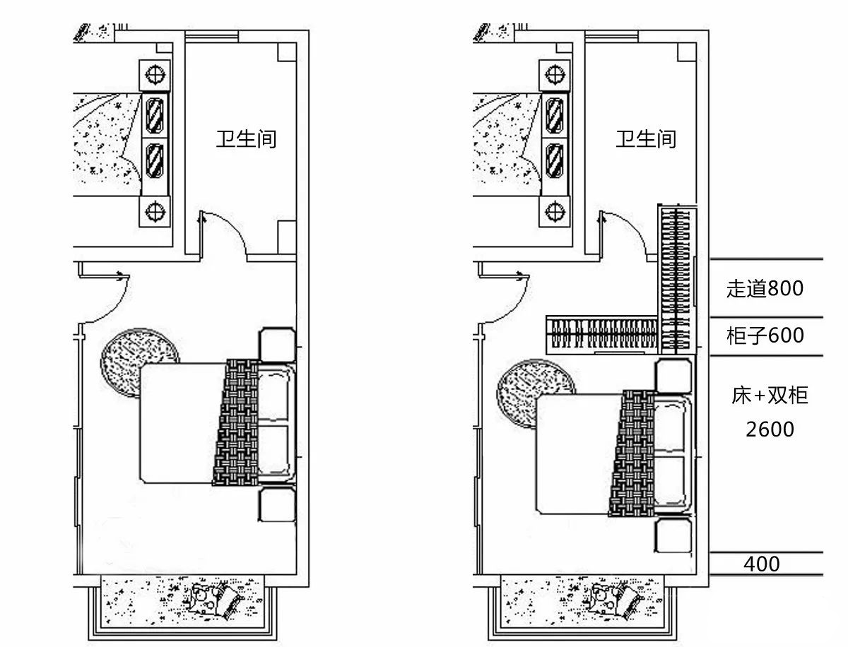
二、增加隔斷

?

增加了一排柜子,相當于一個小的衣帽間,避免了洗手間的門對著床,不足是會稍微有點壓抑的感覺,適用于尺寸較大的房間。


武漢知名裝修公司
?

三、改變開門方向


武漢知名裝修公司
?

這種方案比較簡單,優化了過道交疊,使得利用率更好。但對室內的下水布置改動較大需要注意。


武漢知名裝修公司
?

通過把門的位置改到另一側,避開了衛生間門對著餐廳,但縮小了臥室的空間。


武漢知名裝修公司
?

進階的做法,是改開門角度。這個方案適合入戶過道比較窄,剛好入戶門對著衛生間的戶型,留出1米的過道位置的同時,也在視覺上最大程度避讓了衛生間的門。

?

武漢知名裝修公司澳華裝飾最后提醒大家,所有的改造方案難免存在缺陷,還需要衡量各方面利弊做決定,不要草率行事。

?
預約設計師
海量行家, 搶訂免費設計服務
每日前20名申請用戶, 獲3D裝修設計圖
熱門樓盤
華僑城
琨瑜府
永泰時代
華發外灘首府
復地東湖國際
新華尚水灣
中建御景星城
江山如畫
招商公園1872
銀泰御華園
預約成功
您已報名成功, 稍后會有客服人員聯系您。 您的隱私將被嚴格保密。
關注二維碼了解更多裝修知識
免費獲取同款設計方案
姓名*
樓盤*
電話*
*為了您的權益, 您的隱私將嚴格保密
聯系我們
裝修咨詢電話 : 027-82411111
售后服務電話 : 027-82866788
公司地址 : 武漢市江岸區澳門路232號金冠大廈
關于我們
友情鏈接 :
    武漢澳華裝飾設計工程有限公司 頁面版權所有 www.lygtdj.com

    算一算,您家裝修需要花多少錢?

    知精準報價 避裝修深坑

    01/03

    選擇您喜歡的風格

    • 現代輕奢

    • 現代美式

    • 北歐

    • 新中式

    • 歐式

    • 其他

    算一算,您家裝修要花多少錢?

    知精準報價 避裝修深坑

    02/03

    選擇房屋面積區間

    • 80-100㎡
    • 100-140㎡
    • 140-200㎡
    • 200-300㎡
    • 300㎡以上

    03/03

    您的戶型

    • 兩居室

    • 三居室

    • 四居室

    • 五居室

    • 六居室

    算一算,您家裝修要花多少錢?

    知精準報價 避裝修深坑

    0%

    稍等片刻,您的報價正在生中......

    算一算,您家裝修要花多少錢?

    知精準報價 避裝修深坑

    您的完整報價已經生成

    報名成功享搶訂優惠名額

    每日僅限前10名用戶