小區:長投航空路壹號
戶型:105㎡;113㎡;126㎡;137㎡;142㎡

長投航空路壹號地處漢口核心腹地,雄踞建設大道與航空路“黃金十字軸”交匯處,坐擁三橫三縱三橋三軌,建設大道、解放大道,以及鄰近2/3/7號線,多維立體交通,眾多塔尖資源在此聚集,舉步之間盡攬繽紛萬象,奢享國際生活主場。
為了給長投航空路壹號的業主帶來更好的生活體驗,澳華裝飾的設計師全面解析建面105㎡-142㎡的戶型方案。從居住者出發,從場景入手,平衡視覺效果與居住功能,擴展生活秩序!
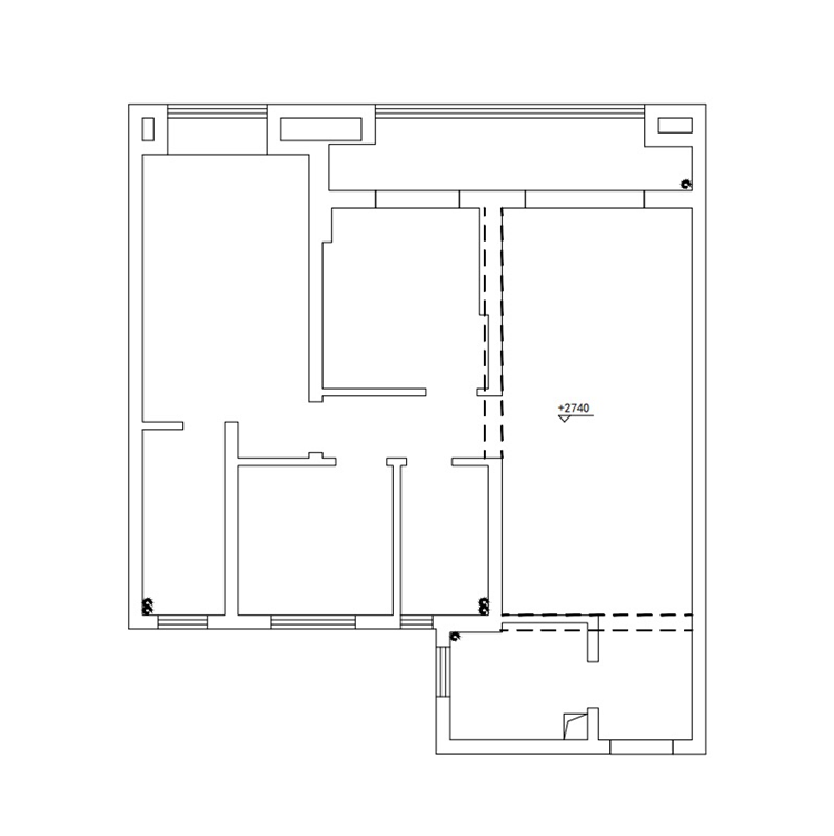
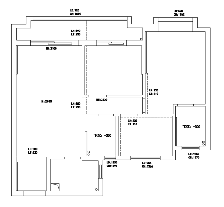
105㎡戶型解析

△原始結構圖
戶型優點
? 戶型比較方正,南北通透,動靜分區明確
? 三房二衛,能夠滿足一家3~5口的居住需求
? 客餐廳空間可優化,陽臺空間跨度大采光好,可做功能分區
戶型缺點
? 廚房空間較小,難以滿足當代人對于廚房電器的需求
? 臥室尺寸不大
? 衛生間受周圍承重墻限制
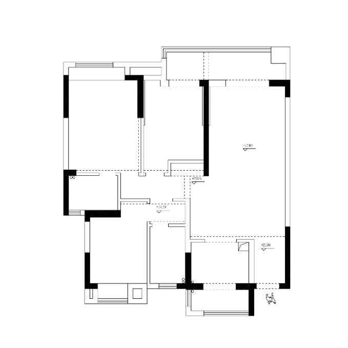
方案
超大豎廳+干濕分離+獨立衣帽間

思路解析
1 入戶玄關柜,餐廳增加餐邊柜充分利用空間,彌補廚房空間不足。
2 客廳陽臺打通,增大視覺空間。
3 書房空間保留,打造多功能空間。
效果圖展示


113㎡戶型解析

△原始結構圖
戶型優點
? 戶型布局規整,方正大氣
? 南北通透,采光通風性性能出色
? 動靜區劃分清晰,動線合理
戶型缺點
? 全房的承重墻較多,對空間使用的局限性較大
? 廚房空間較小受承重墻限制
? 門廳空間較小且采光不足
方案
開放式設計,增設社交廚房

思路解析
1 做開放式廚房,充分利用空間,沒有墻和門做隔斷,有了更大的空間利用,也擴大了視覺空間。
2 美觀性強,廚房格調和客廳風格一致融為一體,入戶門廳空間視角開闊,變得更加明亮。
3 保留三房,滿足多人口家庭居住需求。
效果圖展示


126㎡戶型分析

△原始結構圖
戶型優點
? 戶型布局合理,無死角,無浪費面積
? 客餐廳一起空間大,隱私性好。超大陽臺,采光面大
? 兩個衛生間都是明衛
? 動靜區劃分清晰,動線合理,空間實用性強
戶型缺點
? 客廳空間體塊不夠周正
? 廚房空間有限收納不夠,廚房結構可改造空間不大
? 臥室尺寸不大
方案
超大豎廳+超多儲物

思路解析
1 廚房向陽臺做櫥柜,解決臺面少,無法放置冰箱痛點。
2 從玄關餐廳整墻一體柜,視覺感延伸強;鞋柜餐邊柜加展示區加儲物柜的功能,擁有超強收納。
3 保留原始結構,舒適三房滿足三代同堂的家庭。
4 客廳與陽臺一體設計,空間更加開闊通透。
5 主臥衛生間門對著床,用衣柜制造視覺阻擋同時增加收納。
效果圖展示



137㎡戶型分析

△原始結構圖
戶型優點
? 南北通透,超大采光面,采光通風俱佳
? 戶型方正,無異形
? 動靜區劃分清晰,動線合理
? 主臥套間單獨配備收納區,收納空間充足
? 房間帶飄窗增加使用面積,靈活設計使用
戶型缺點
? 全房的承重墻較多,對空間使用的局限性較大
? 靠近主臥的次臥空間不足,衣柜不便安置
方案
超大豎廳+獨立衣帽間

思路解析
1 通過減小次衛,和主臥更衣區面積,解決靠近主臥的次臥空間不足衣柜不便安置的問題。
2 保留原始結構,舒適三房滿足三代同堂的家庭。
效果圖展示


142㎡戶型解析

△原始結構圖
戶型優點
? 南北通透,超大采光面,采光通風俱佳
? 戶型方正,無異形
? 動靜區劃分清晰,動線合理
戶型缺點
? 全房的承重墻較多,對空間使用的局限性較大
? 廚房空間較小受承重墻限制
方案
超大橫廳+干濕分離+衣帽間

思路解析
1 廚房向外擴解決廚房尺度過小,無法放置冰箱痛點。
2 干濕分區,解決衛生間過小的問題。
效果圖展示


知精準報價 避裝修深坑
選擇您喜歡的風格
現代輕奢
現代美式
北歐
新中式
歐式
其他
知精準報價 避裝修深坑
選擇房屋面積區間
您的戶型
兩居室
三居室
四居室
五居室
六居室
知精準報價 避裝修深坑
稍等片刻,您的報價正在生中......
知精準報價 避裝修深坑
每日僅限前10名用戶