小區:融創玖璽臺
戶型:119㎡;131㎡;140㎡;143㎡;191㎡

融創玖璽臺位于漢口的區域主軸,串聯了中央商務區、建設大道金十字,銜接起武廣國廣、天街、萬達、花園道等商業節點。往前一步是城市繁華,往后一步是寧靜平和,通達便利,進退自如!
為了給融創玖璽臺的業主帶來更好的生活體驗,澳華裝飾的設計師全面解析建面119-191㎡的戶型方案。從居住者出發,從場景入手,平衡視覺效果與居住功能,擴展生活秩序!

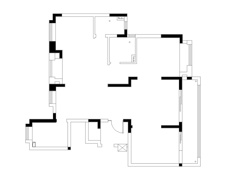
△原始結構圖
戶型優點
√ 戶型方正,無長走道浪費,超長陽臺視野好,空間利用率較高。
√ 動靜分離,主臥和次臥公共區域各自分開,隱私性好,動線合理。
戶型缺點
× 全南戶型,整體采光和通透性一般。
× 廚房空間有限收納不夠,戶型結構可改造空間不大。

思路解析
1 入戶處以鞋柜+嵌入式冰箱柜一體,在滿足家里超大儲物的同時解決了廚房放冰箱收納不夠問題。
2 保留原始結構,舒適三房滿足三代同堂的家庭。
3 客廳與餐廳一體設計,空間更加開闊通透。
4 客衛做干濕分離處理,同時使用互不打擾,增加衛生間實用性。
效果圖展示



△原始結構圖
戶型優點
√ 客廳功能區域空間較大,有利于舒適性的布置,增加使用性和趣味空間。
√ 功能區域劃分清楚。
戶型缺點
× 餐廳空間布局較小,使用率不高。
× 門廳收納空間不夠且狹長,采光不足。
× 廚房有效利用空間不足。
× 各個臥室的收納空間不足。
× 大陽臺利用率不高。

思路解析
1 客廳與陽臺一體設計,提升視覺空間,增加了互動場所。
2 開放式廚房+餐廳設計,增設島臺,提升烹飪用餐體驗。
3 主臥打造U型衣帽間,增加收納;浴室納入主臥,打造功能齊全的奢華套房。
4 一間次臥打造多功能書房,集收納、辦公、休閑為一體。
效果圖展示



思路解析
1 客廳與陽臺一體設計,提升視覺空間,增加了互動場所。
2 隔絕油煙的封閉式廚房+餐廳補充西廚臺,打造多元烹飪用餐場景。
3 主臥打造L型衣帽間,增加收納;浴室納入主臥,打造功能齊全的奢華套房。
4 保留三房,滿足多人口家庭居住需求。
效果圖展示



△原始結構圖
戶型優點
√ 采光通風非常理想,結構合理,動靜分離。
√ 每個區域尺寸都可以滿足家用柜類儲藏空間。
√ 寬暢的門廳讓客廳和餐廳之間有足夠的緩沖區域。
√ 客廳通長陽臺可以讓客戶根據居住要求多元化設計選擇。
戶型缺點
× 客廳下方的臥室通風性稍差。
× 餐廳和廚房的進出接觸面偏小。
× 客衛生間離公共區域及客廳下方臥室偏遠。

思路解析
1 客餐廳陽臺一體化設計,提升視覺空間,增加了互動場所。
2 兩間臥室打通,形成了一個臥室+衣帽間的舒適套臥。
3 主衛納入主臥,形成私密、便捷的舒適套臥。
4 三間臥室,滿足多人口家庭;每間房間都設置了書桌,滿足辦公及學習需求。
效果圖展示


思路解析
1 客餐廳陽臺一體化設計,提升視覺空間,增加了互動場所。
2 客廳下方的臥室做獨立衣帽間,增加家庭的儲物空間。
3 主衛納入主臥,形成私密、便捷的舒適套臥。
4 保留三房,滿足多人口家庭;每間房間都設置了書桌,滿足辦公及學習需求。
效果圖展示



△原始結構圖
戶型優點
√ 戶型方正,采光通風都很不錯。
√ 戶型功能區域劃分清晰。
√ 擁有開闊的觀景大陽臺。
戶型缺點
× 廚房較小,活動受限。
× 衛生間無下沉,空間較小。

思路解析
1 客廳與陽臺聯通,增大會客區域,提升大氣視覺。
2 客餐廳一體化設計,提升視覺空間的同時,考慮充足儲存空間,并且打造了島臺及對窗吧臺,功能豐富多彩。
3 主衛納入主臥,形成私密、便捷的舒適套臥。
4 一間臥室做獨立衣帽間,提升生活品質。
5 三間臥室,滿足多人口家庭居住。
效果圖展示



△原始結構圖
戶型優點
√ 戶型方正,采光通風都很不錯。
√ 戶型功能區域劃分清晰。
√ 擁有開闊的觀景大陽臺。
戶型缺點
× 北面房間位置不適合獨立使用。
× 大框架剪力墻結構固定,只能做小調整

思路解析
1 客廳與陽臺聯通,增大會客區域,提升大氣視覺。
2 餐廳廚房一體化設計,提升視覺空間的同時,考慮充足存儲空間,并且打造了島臺及對窗吧臺,功能豐富多彩。
3 餐廳餐邊柜作為廚房功能的延伸,視覺層次富有變化,
4 主臥套間設計,致使南北更加通透大氣。
5 北面臥室獨立分區,改造一個功能型書房,加一個小孩房或者客臥營造豪華舒適的實用空間。
效果圖展示


知精準報價 避裝修深坑
選擇您喜歡的風格
現代輕奢
現代美式
北歐
新中式
歐式
其他
知精準報價 避裝修深坑
選擇房屋面積區間
您的戶型
兩居室
三居室
四居室
五居室
六居室
知精準報價 避裝修深坑
稍等片刻,您的報價正在生中......
知精準報價 避裝修深坑
每日僅限前10名用戶