案例簡介:美式古典風格是眾多風格中的一種,在傳承歐式文化的基礎上結合了美國自身文化的特點,而形成的自己更格,其實它的風格是一種混合風格。
1 借鑒了古典主義和新古典主義風格的元素和特點是美式古典風格的一大亮點。美式古典風格裝修材質主要為堅硬、華麗的材質,亮色較少,窗簾和壁紙也多選用柔和色彩。營造溫馨的古典氣質。摒棄了歐式的富麗堂皇的氣質,轉而更注重家居整體的實用和協調。
2 美式古典風格裝修更考慮每個空間的多樣用處。與客廳空間相比,美式古典風格起居室較低矮平和,起居室選材也多采用舒適柔軟的材質,更注重家庭氛圍。起居室內也多配以電視等娛樂用品,可以想象在這一空間中孩子的歡笑,電視聲音,談話聲在這一空間中的其樂融融。
3 美式古典風格裝修中的家具也很有特色,主色調是黑、暗紅、褐色及深色的美式古典風格家具色澤較深,在家中更顯穩重優雅。其臥床有高柱和帳幔,曼妙的床幔可以看出美式古典風格的優雅美。而美國古典風格的椅子凸顯了“安娜女王”的特點而美式家具的雕刻在做舊、蟲眼、浸蝕等的點綴下,盡顯美式古典之美。
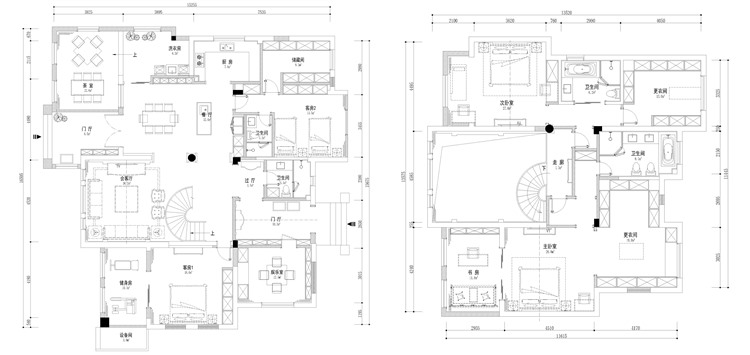
戶型解析:

F天下五居室美式古典風格的面積是300平方米,戶型各個朝向的窗戶都具備,在通風性和采光性不需要擔心。具體臥室和客廳的位置分布很合理,既保障了臥室的私密性,又保障了客廳的休閑性。由于具體的面積在300平米,客廳和臥式的空間都是比較寬敞的。在衛生間的數量也是很充足的,居住的時候每個人都可以用于自己足夠的生活空間。
玄關:

柜子采取頂墻設計方式可以裝入很多物品,地磚的地面有利于衛生打理,玄關內部的椅子確保了外出打理的便利。
客廳:


沙發和地毯都經過精心挑選,傳統美式風格低調奢華,缺點便是客廳的電視墻略微狹窄,觀看電視些許不舒適。
餐廳:

餐廳整體呈現的是長方形的狀態,空間很大,餐廳的窗戶不僅僅滿足了通風要求,還可以確保餐廳內部的空氣質量。美式古典風格的餐桌椅和吊頂相映成彰,彰顯出來餐廳的高貴舒適。
臥室:


主臥次臥客臥各具風格,吊頂吊燈和床鋪融為一體,每一個臥室都能夠帶來居住的高端感以及舒適度。
陽臺:

露天陽臺保障了空氣流通,陽臺的光線很充足,搭配綠植使得陽臺變得生機勃勃。
知精準報價 避裝修深坑
選擇您喜歡的風格
現代輕奢
現代美式
北歐
新中式
歐式
其他
知精準報價 避裝修深坑
選擇房屋面積區間
您的戶型
兩居室
三居室
四居室
五居室
六居室
知精準報價 避裝修深坑
稍等片刻,您的報價正在生中......
知精準報價 避裝修深坑
每日僅限前10名用戶