案例簡介:北歐風雖然也呈現的是一種簡約的清新感,但是與其他簡約家裝風格相比而言,簡歐更強調一種生活的品質感與色彩碰撞所帶來的獨特藝術感,這也正是北歐風的魅力所在。本案例的設計師借助經典的灰白配色來營造北歐風的簡約清新感,同時利用各種藝術化元素來增加空間的時尚感與品位感。
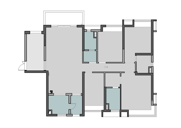
戶型解析:


名都花園這套165㎡的四居室房屋整體的戶型結構四方且平整,已經完成了基本的功能分區,不過部分細節處理并不夠合理,因此設計師進行了部分的調整。原入戶處玄關的遮擋較多,設計師將玄關與客廳的墻面打通一部分,避免玄關區域過于封閉而帶來壓迫感。同時由于走廊過道相對比較狹長,設計師借助了一些軟裝設計來降低走廊區域的封閉感與單調感,進而提升整體家居的格調品質感。
客廳:


大面積的落地窗讓陽光能夠肆無忌憚的撒落在客廳,灰色的沙發搭配上白色水泥墻,給人以舒適的浪漫清新氛圍。
餐廳:


就餐區域同樣利用潔凈的白色作為主基調色,點綴少量的原木色,強調空間自然清新美。
臥室:

灰色的墻面搭配上小清新感十足的背景墻,為空間營造溫馨柔和氛圍。
書房:

由簡單書架構成的墻面清新又耐看,藝術感十足。
衛生間:

衛生間區域借助不同材料進行結構打造,白色水泥墻與條形瓷磚的碰撞耐看,同時為空間增添了結構豐富美。
知精準報價 避裝修深坑
選擇您喜歡的風格
現代輕奢
現代美式
北歐
新中式
歐式
其他
知精準報價 避裝修深坑
選擇房屋面積區間
您的戶型
兩居室
三居室
四居室
五居室
六居室
知精準報價 避裝修深坑
稍等片刻,您的報價正在生中......
知精準報價 避裝修深坑
每日僅限前10名用戶