案例簡介:本案例的業主喜歡與眾不同的東西,因此他希望自己的家也能夠帶有濃烈的個人色彩。而由于業主平時工作比較忙碌,并沒有過多的時間用于家居打理,因此設計師選用了現代簡約風進行裝飾,同時借助不同的線條組合搭配來突出空間的個性感與獨特感。而色彩的選擇上,設計師則選用了反差感較大的不同顏色進行搭配,通過色彩的對比來突出空間的特有氣質。
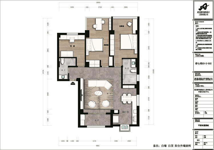
戶型解析:

中建御景星城這套130㎡的三居室住宅整體戶型結構偏長方形,這也就意味著部分功能空間會出現狹長的壓迫視覺感,因此設計師在進行裝飾設計的時候就需要充分利用了空間面積,避免由于不合理的設計造成原本就不算寬敞的空間看起來更加的壓抑。為了更好滿足業主的日常起居使用需求,設計師將其中一個面積較小的次臥改造成書房,同時利用榻榻米進行裝飾,滿足業主辦公閱讀需求的同時,也可以滿足客人短暫的起居使用需求。
客廳:

大面積的白色搭配上灰色沙發,整體給人簡約的樸素感。而由弧線組成的木色地毯則為空間增添了一抹不一樣的獨特氣息。
餐廳:

白色餐桌臺搭配上灰色椅子,整體呈現簡約的優雅氛圍。
臥室:

臥室區域沒有做過多的裝飾設計,而是借助一個簡單的藝術燈飾完成空間軟裝,強調舒適與自然感。
衛生間:

玻璃推拉門滿足干濕分離使用需求,白色臺面搭配上大理石結構設計,給人以低調的輕奢高級感。
知精準報價 避裝修深坑
選擇您喜歡的風格
現代輕奢
現代美式
北歐
新中式
歐式
其他
知精準報價 避裝修深坑
選擇房屋面積區間
您的戶型
兩居室
三居室
四居室
五居室
六居室
知精準報價 避裝修深坑
稍等片刻,您的報價正在生中......
知精準報價 避裝修深坑
每日僅限前10名用戶