案例簡介:對于在喧囂鬧市中待久了的人來說,自然舒適就成為了尋尋覓覓的心靈休憩,也因此簡約的自然家居是大多業主所向往的,本案例的業主也同樣不例外。為了給業主營造一個舒適的“室外桃園”,設計師借助大量不加裝飾的自然元素進行空間軟裝,強調一種“天然去雕飾”的清新自然氛圍。為了提升空間的易打理程度,設計師選用了相對比較耐臟的木色與灰色作為主基調色,以提升生活舒適度。
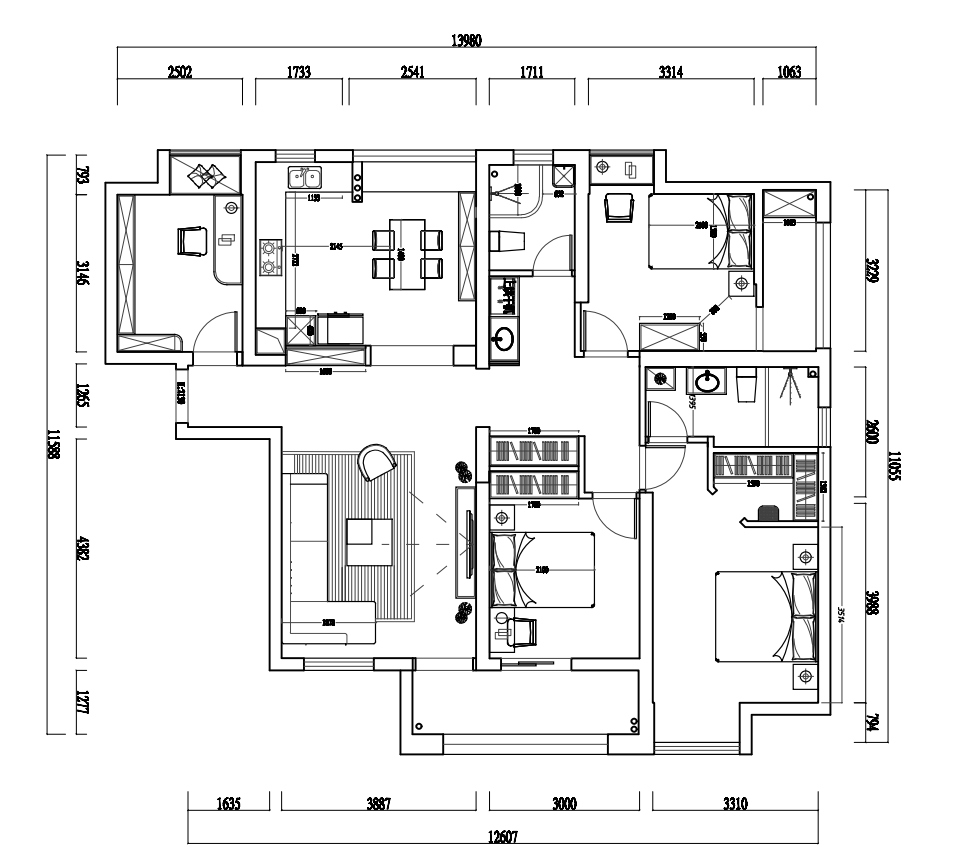
戶型解析:


百瑞景的這套160㎡四居室住宅原有的戶型結構相對比較正方平整,不過存在著部分難以利用的小空間,因此設計師在進行規劃設計的時候將小空間打通改造,釋放空間功能。如客廳區域與臥室區域的外部區域直接打通改造成一個大陽臺,將兩個小空間整合在一起以提升空間利用率。入戶走廊盡頭的空間則直接納入主臥空間并改造成一個迷你的衛浴空間,提升主人日常起居生活的便利度。
客廳:


柵欄式的木質背景墻搭配上水泥墻面,兩種自然感元素的碰撞讓家居空間更具設計美感。
餐廳:

灰色的地板簡約耐看且耐臟,原木色的儲物柜搭配上不規則的分隔,清新而又不失簡約藝術美。
臥室:

嵌入式白色梳妝臺提升空間美感,素色印花地毯則搭配了空間單調感,讓休憩空間更具結構律動美。
知精準報價 避裝修深坑
選擇您喜歡的風格
現代輕奢
現代美式
北歐
新中式
歐式
其他
知精準報價 避裝修深坑
選擇房屋面積區間
您的戶型
兩居室
三居室
四居室
五居室
六居室
知精準報價 避裝修深坑
稍等片刻,您的報價正在生中......
知精準報價 避裝修深坑
每日僅限前10名用戶