案例簡介:作為一個幸福的三口之家,本案例業主在進行空間裝飾的時候沒有提出過多的要求,只強調整體以簡約為主,且需要滿足孩子的審美。因此設計師在與業主進行深入交流,在充分了解孩子審美的前提下對空間進行了一定的裝飾設計,整體選擇現代簡約風進行軟裝,通過材料本身的質感對空間進行一定的裝飾,強調低調輕奢美。
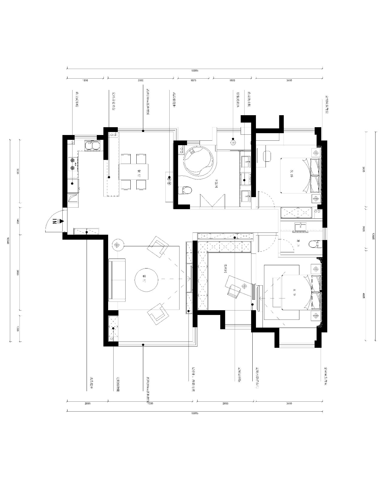
戶型解析:

中建御景星城這套151㎡的二居室住宅原本的戶型結構就足夠方正,因此設計師無需改拆原有的前提。而根據女主人的需求,設計師在主臥區域單獨劃分出一塊衣帽間,以滿足衣物放置與女主人更換衣服的需求。而為了提升空間的通透感,廚房區域則打造為半開放設計,減少硬隔斷出現,避免空間產生壓抑感。
客廳:



客廳區域借用側面房屋的墻面打造背景墻,提升空間利用率。黑白灰的經典配色耐看而又時尚感十足。
餐廳:

餐廳區域設置在半開放式廚房的外部,同時運用與廚房一致的淺色系色彩進行軟裝,強調空間整體的和諧感。
| 姓名* | |
| 樓盤* | |
| 電話* | |
知精準報價 避裝修深坑
選擇您喜歡的風格
現代輕奢
現代美式
北歐
新中式
歐式
其他
知精準報價 避裝修深坑
選擇房屋面積區間
您的戶型
兩居室
三居室
四居室
五居室
六居室
知精準報價 避裝修深坑
稍等片刻,您的報價正在生中......
知精準報價 避裝修深坑
|
每日僅限前10名用戶