案例簡介:為方便孩子上學,本案例的業主在孩子上學前就購置了一套學區房,因此在進行裝修設計上希望設計師能夠優先從孩子的審美角度出發,激發孩子的想象力與創造力。因此本案例的設計師在進行裝飾設計時除了考慮整體的實用性、空間功能規劃外,還從孩子的審美、生活習慣角度出發,以保障能夠讓家成為孩子健康成長的快樂樂園。
戶型解析:



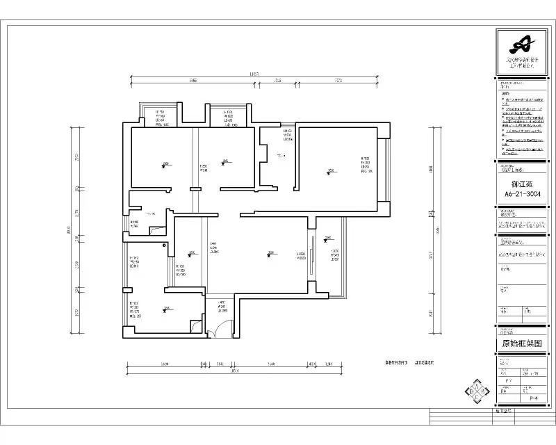
御江苑2期這套三居室的建筑面積大約為130㎡,原有的戶型結構相對比較平整,且能夠滿足基本使用需求,因此設計師沒有改動整體格局,而是對各個功能空間進行了規劃設計。為了滿足業主在家辦公需求及孩子閱讀需求,設計師將原來的次臥改造成一間小書房。而為了提升休憩質量,空間的動靜區域進行合理的規劃區分。
客廳:



素雅的主基調色配色暖黃色燈具,朦朧而又不失溫馨感,亮色窗簾則讓空間多一抹明快氣息。
餐廳:

簡約的白色墻面搭配上長條餐桌,能夠滿足多位家庭成員就餐需求。藝術性掛燈,則讓就餐區域更具時尚氣息。
廚房:

白色墻面搭配上淺藍色櫥柜,精致又和諧,黑色抽油煙機的存在則打破了空間的輕浮感。
書房:

隱藏式收納柜的存在既可以滿足書籍收納需求,又不會占用較多空間。
臥室:



主臥以女主人偏愛的粉色為主基調色,搭配以各種少女心元素,強調溫馨甜美氛圍。
兒童房:

藍色印花壁紙溫馨而又充分童趣,雙層式床體設計則能夠滿足業主后續二胎孩子的起居使用需求。
知精準報價 避裝修深坑
選擇您喜歡的風格
現代輕奢
現代美式
北歐
新中式
歐式
其他
知精準報價 避裝修深坑
選擇房屋面積區間
您的戶型
兩居室
三居室
四居室
五居室
六居室
知精準報價 避裝修深坑
稍等片刻,您的報價正在生中......
知精準報價 避裝修深坑
每日僅限前10名用戶