案例簡介:這套房屋的業主是一對80后夫婦,兩個人作為都市白領對于北歐風情有獨鐘,也因此希望在進行房屋裝修的時候能夠打造出北歐所特有的清新浪漫風情。而設計師則是根據了房屋的空間特點,夫妻二人的喜好進行了空間設計,在空間規劃上劃分出主臥、次臥與書房,滿足來客居住使用需求,而色彩的選擇上則借助原木色營造一種自然清新的韻味。
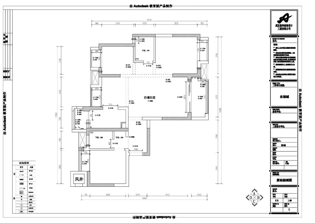
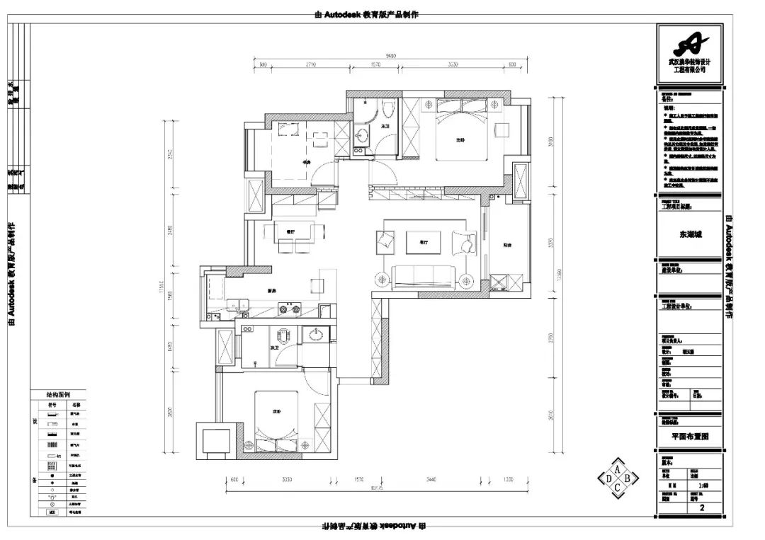
戶型解析:


星湖公館的這套108㎡的三居室房屋結構其實并不算方正,整體結構呈現為L形態,為了將空間進行更加合理的規劃,設計師將主臥、書房設置在面積較廣的左邊空間,而半邊區域則打造為次臥,以提升居住者的實密度。而就餐區域則設置在客廳的縱向線條處,同時不做硬隔斷,以避免空間顯得壓抑緊迫。
玄關:

入戶玄關選用了簡約的白色作為主基調色,利用色彩的延伸起到空間引導作用。而玄關盡頭處則使用了一幅山水畫作為點綴,提升空間精致格調。
客廳:



為了節省空間占用,客廳區域的電視背景墻巧妙的使用了一個原木混白色的儲物柜作為裝飾,簡約而又不失實用性。
餐廳:


餐廳區域與半開放的廚房被攝制組愛同一個區域中,如此即可有效節約使用面積,又能夠確保上菜與就餐的時間得到縮減。
臥室:


臥室區域選用了給人靜謐感的藍色作為主基調色,以提升居住者的睡眠質量。而半隱形的白色衣柜既可以滿足使用需求,又不會過于突兀。
書房:


由于書房區域面積不大,因此設計師沒有對書房進行過多的裝飾,而是選擇“返璞歸真”的設計手法,借助大面積的木質材料搭配水泥材質,營造一種質樸清新的藝術氛圍。
衛生間:

衛生間區域使用了大量菱形瓷磚貼墻,以強調一種小而精致的氛圍感。而透明的玻璃門則起到干濕分離的作用,提升生活品質。
知精準報價 避裝修深坑
選擇您喜歡的風格
現代輕奢
現代美式
北歐
新中式
歐式
其他
知精準報價 避裝修深坑
選擇房屋面積區間
您的戶型
兩居室
三居室
四居室
五居室
六居室
知精準報價 避裝修深坑
稍等片刻,您的報價正在生中......
知精準報價 避裝修深坑
每日僅限前10名用戶