案例介紹:本案業主是三口之家,業主是一家企業老板,太太全職在家照顧剛上初二的女兒,在風格選擇上,業主喜歡歐式風格,希望家里多一些溫馨浪漫的感覺,不僅要設計得上檔次,格調大氣,也要能滿足家人的生活需求,營造出意蘊豐富,品質舒適的歐式感。
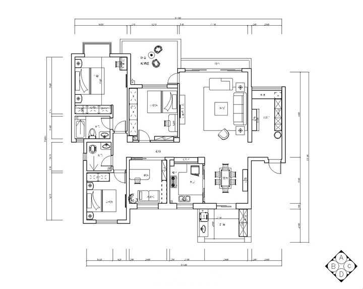
戶型解析

東方世家這套136㎡三居室整體方正,從平面圖上可以看到,入戶玄關私密性好,客廳與餐廳開放式設計,廚房靠鄰餐廳,方便傳遞菜品,臥室集中分布,主臥附帶衛生間,次臥前往公衛的距離不長,居住舒適度高,室內動線流程,無需進行二次優化。
餐廳

黃色的活力感充斥著整個餐廳,方形吊頂配以多層次照明的設計方式,令餐廳空間更有層次感,黃色皮質餐椅與空間氛圍契合,營造出精致的用餐氛圍。
臥室

臨窗處增設了榻榻米,并利用右側墻體設計出收納空間,令空間立面選擇更為整潔。白色衣柜層次感強,底部專門預留鞋架,并在一側放置了換鞋凳,方便主人日常使用。
知精準報價 避裝修深坑
選擇您喜歡的風格
現代輕奢
現代美式
北歐
新中式
歐式
其他
知精準報價 避裝修深坑
選擇房屋面積區間
您的戶型
兩居室
三居室
四居室
五居室
六居室
知精準報價 避裝修深坑
稍等片刻,您的報價正在生中......
知精準報價 避裝修深坑
每日僅限前10名用戶