案例簡介:
該別墅坐落為一位退休老人所有,坐落于相對比較成熟的商圈地段中。而業主希望設計師能夠將別墅空間進行合理的規劃設計,在滿足自己與家人使用需求的前提下,追求一份靜謐、舒適的自然氣息,以便自己頤養天年。因此設計師在對該空間進行規劃設計的時候,以退休老人及其家人的需求為主設計思路,根據起居需求打造了書房、停車間等區域,以提升生活品質。
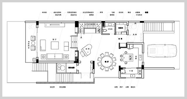
戶型解析:



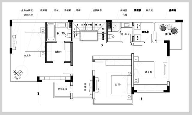
這是一套位于長源假日港灣三層別墅,建筑面積約為290㎡,空間相對比較富足,可供居住者自由分配。戶型上,該別墅空間南北通透,整體結構相對比較方正,沒有較多犄角空間。設計師在對該別墅進行設計時,充分考慮了業主的需求,將一層外部空間直接打通為停車區域,滿足停車需求。同時,將會客區域與休憩區域設置于不同樓層,有效提升了居住私密性。
客廳:


客廳區域選用了相對比較清新明麗的色彩作為主基調色,以烘托現代輕奢的自然典雅氣息。電視背景墻處大面積的大理石材質與白色木質門框相得益彰,讓簡約之美展露無疑的同時更顯和諧精致。
餐廳:

餐廳區域選用了經典的黑白配色,大面積的白色搭配上黑色餐桌椅,營造較強的視覺沖擊效果。圓形凹顯的吊頂設計搭配上低調簡約的巨型吊燈,則讓輕奢的浪漫之美更好顯露。
廚房:

廚房區域以大面積瓷磚做裝飾,通過瓷磚的珠光感來營造廚房的潔凈舒適感。推拉門的半透明設計既可以起到分隔空間的作用,又能夠讓整個家居空間更顯靈動通透。
臥室:


精致的浮雕設計搭配上大面積的落地窗為臥室空間籠罩上一抹淡淡的華貴美。巨型吊燈、精致的床頭燈雙燈設計則能夠滿足休憩者不同的燈光需求。
書房:


帶有木材天然紋理的深棕色書柜、桌椅搭配上簡約的綠植,一種渾厚端莊的大氣之美呼之欲出,讓整個書房空間更顯肅靜高級。
知精準報價 避裝修深坑
選擇您喜歡的風格
現代輕奢
現代美式
北歐
新中式
歐式
其他
知精準報價 避裝修深坑
選擇房屋面積區間
您的戶型
兩居室
三居室
四居室
五居室
六居室
知精準報價 避裝修深坑
稍等片刻,您的報價正在生中......
知精準報價 避裝修深坑
每日僅限前10名用戶