今日股市推荐排名-热点股票指标公式-【东方资本】,如何股票做空,可靠的股票配资平台是哪个,股票开通t 0最简单三个步骤

24小時咨詢電話
027-82411111
當前位置 : 首頁 > 大咖設計 > 連芬
找TA設計
專業認真
DESIGNER
連芬 主任設計師
從業時間 : 2009 作品數量 :9套
司 : 華中超級旗艦店
業主評價 :
    • 溫馨的室內氛圍
    • 有創意
    • 設計出眾
    • 專業技能
    • 專業技能
    • 建議很合理
    現代簡約,輕奢,新中式,中古風,奶油風
    • 個人簡介
    • 設計理念
    • 經典樓盤

    • 全國住宅裝飾行業資深設計師

      高級室內設計師、二級建造師


      所獲榮譽:

      2015年湖北十佳設計師

      2016年家具空間設計大賽最佳創意獎

      2017年武漢建筑裝飾行業優秀設計師

      2018年設計新銳獎

      2019年工匠杯全國優秀設計師作品獎

      2020年武漢創意設計大賽優秀獎

      2022年紅鼎獎優秀作品

      2023中國室內設計年度評選設計優秀獎

    • 一塵不染素凈澄明。用平靜的心靈看世界,利用淡淡的家具布局把原有的空間凈化,把氣質和品位含蓄地表現出來。


    • 華僑城歡樂天際、美的云筑、中建星光城、中建鉑公館、琨御府、昆侖御、中建福地星城、華僑城紅坊、金沙泊岸、融僑濱江城

    相關案例
    戶型解析
    在施工地
    其他案例推薦
    相關案例
    戶型解析
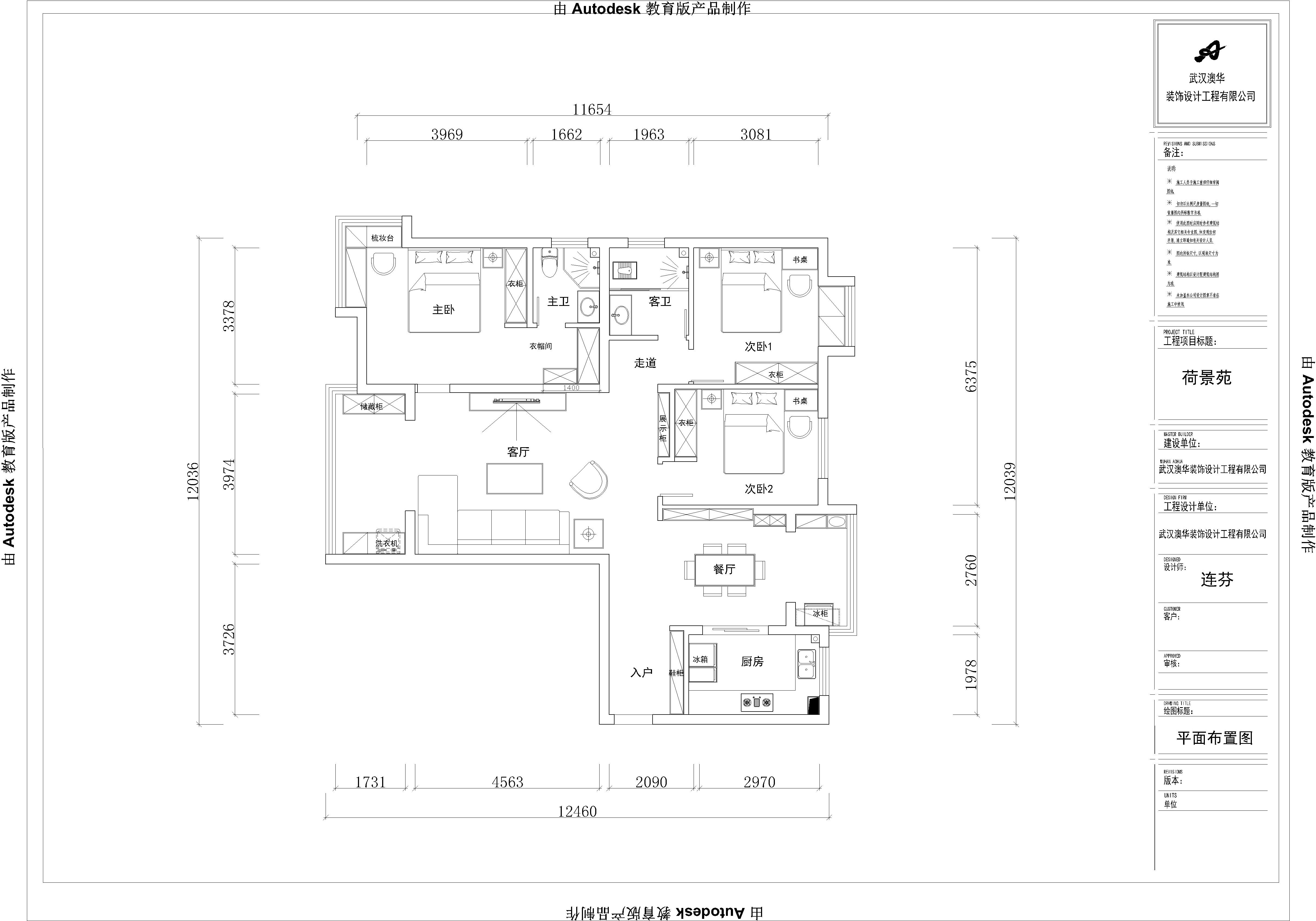
    荷景苑 128 ㎡四居室現代輕奢住宅戶型解析
    四居室
    128m2
    輕奢風

        案例簡介:本案例的業主是一對即將退休的夫婦,其中男主人偏愛品酒,且平時也會收藏一些好酒,因此在裝修設計這塊希望能夠預留出自己的小天地。而女主人公平常負責家務比較多,因此裝修設計這塊更看重的是整體的耐看性與是否便于打理。綜合兩位業主的需求,設計師對空間進行了再分割,同時在室內融入酒柜設計,以滿足男主人的需求。


        戶型解析:




        荷景苑這套128㎡的四居室住宅整體戶型四平八穩,而空間結構上,入戶處的面積相對比較寬敞,如果僅僅用來做玄關相對比較浪費,因此設計師將該空間分隔成兩個區域,其中一塊設計為廚房,以提升空間的利用率。主臥區域則與其中一個衛生間空間進行銜接融合,提升主人起居生活的便利度。


        玄關:


    入戶.jpg

        玄關處借用遠處墻面的藝術畫作為點綴,同時側面由白色櫥柜進行裝飾,強調實用性。


        客廳:




        由木質與大理石材質打造的電視背景墻清新而又不失理性,鏤空的設計則讓空間的通透感更加強烈。


        餐廳:




        嵌入式木質酒柜滿足男主人收藏酒的需求。白色與原木色的搭配組合,則讓空間整體清新自然。


    在施工地
    • 開工
    • 前期
    • 中期
    • 后期
    • 竣工
    預約設計師
    海量行家, 搶訂免費設計服務
    每日前20名申請用戶, 獲3D裝修設計圖
    預約設計師
    姓名*
    樓盤*
    電話*
    *為了您的權益, 您的隱私將嚴格保密
    推薦相關案例
    免費獲取同款設計方案
    姓名*
    樓盤*
    電話*
    *為了您的權益, 您的隱私將嚴格保密
    預約成功
    您已報名成功, 稍后會有客服人員聯系您。 您的隱私將被嚴格保密。
    關注二維碼了解更多裝修知識
    聯系我們
    裝修咨詢電話 : 027-82411111
    售后服務電話 : 027-82866788
    公司地址 : 武漢市江岸區澳門路232號金冠大廈
    關于我們
    友情鏈接 :
      武漢澳華裝飾設計工程有限公司 頁面版權所有 www.lygtdj.com

      算一算,您家裝修需要花多少錢?

      知精準報價 避裝修深坑

      01/03

      選擇您喜歡的風格

      • 現代輕奢

      • 現代美式

      • 北歐

      • 新中式

      • 歐式

      • 其他

      算一算,您家裝修要花多少錢?

      知精準報價 避裝修深坑

      02/03

      選擇房屋面積區間

      • 80-100㎡
      • 100-140㎡
      • 140-200㎡
      • 200-300㎡
      • 300㎡以上

      03/03

      您的戶型

      • 兩居室

      • 三居室

      • 四居室

      • 五居室

      • 六居室

      算一算,您家裝修要花多少錢?

      知精準報價 避裝修深坑

      0%

      稍等片刻,您的報價正在生中......

      算一算,您家裝修要花多少錢?

      知精準報價 避裝修深坑

      您的完整報價已經生成

      報名成功享搶訂優惠名額

      每日僅限前10名用戶