今日股市推荐排名-热点股票指标公式-【东方资本】,如何股票做空,可靠的股票配资平台是哪个,股票开通t 0最简单三个步骤

24小時咨詢電話
027-82411111
當前位置 : 首頁 > 大咖設計 > 汪勇浩
找TA設計
專業認真
DESIGNER
汪勇浩 高級主任設計師
從業時間 : 2006 作品數量 :4套
司 : 總部旗艦店
業主評價 :
    • 專業能力強
    • 建議很合理
    • 空間設計和諧
    • 談吐幽默
    • 細節設計生活便利
    • 交給他放心
    現代簡約,輕奢,法式,意式風,奶油風
    • 個人簡介
    • 設計理念
    • 經典樓盤

    • 中國裝飾協會高級會員

      中國流行色彩協會會員


      所獲榮譽:

      2008年獲得“威能杯”設計大賽武漢賽區第三名

      2010年武漢建筑裝飾行業優秀設計師

      2015年清華大學美術學院第二屆“水木清華”設計比賽工程類銅獎

      2016年度中國“營造空間”設計峰會作品類金獎

      2017屆意大利米蘭理工大學冬季游學班優秀游學生

      2023年第七屆cbda住宅產業紅鼎創新大賽銅獎

      2023年武漢建筑裝飾行業年度優秀設計師

      2024年紅鼎獎優秀作品獎


      擅長風格:


      現代輕奢 | 現代簡約 | 極簡 | 法式復古 | 北歐 


    • 我們相信設計應回歸人性本質。通過解構傳統符號與現代技術,創造具有情感溫度的空間與物件,讓每一處細節都能講述故事,連接人與環境。

    • 時代豪苑、御湖世家、御湖漢印、復地東湖國際、泛海蕓海園、水岸星城、夢湖水岸、星譽國際、世茂龍灣2,4,6期

    相關案例
    戶型解析
    在施工地
    其他案例推薦
    相關案例
    戶型解析
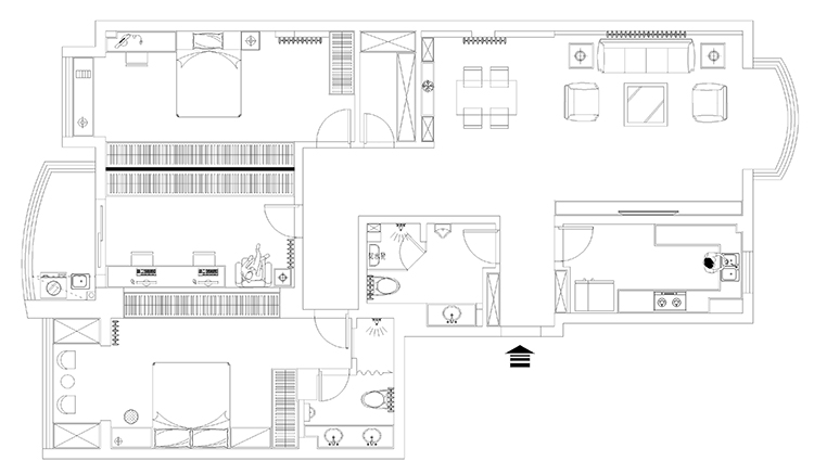
    集賢公寓158平米三居輕奢風戶型解析
    三居室
    158m2
    輕奢風

    案例介紹:本案為輕奢風格三居室,男主人為企業高管,女主人對顏色有著獨特的見解,曾是美術學院的她頗愛輕奢風格,溝通時二人提出了輕奢設計的需求,對空間的收納有一定需求,室內柜面選擇整裝定做,以呈現出高品質的視覺效果。


    戶型解析


    1.jpg


    戶型圖比較方正,餐客采用橫廳設計,廳出陽臺,空間采光和通風都很不錯;臥室分布在南北兩側,中部為書房,書房內置獨立陽臺,生活辦公都十分舒適;兩個臥室的面積寬敞,朝南的臥室帶有衛生間,私密性更好。


    客廳



    客廳與餐廳相互結合,功能區之間并沒有明顯隔斷,設計師通過燈具和背景墻的造型來進行分區,讓整個空間變得更加和諧舒適;電視墻使用了大理石鋪貼,并在左側增設了收納柜,讓客廳空間變得更加富有時尚感和層次感。


    餐廳


    5.jpg


    在白色的餐廳空間中搭配上暖色餐椅,用餐空間立刻有了一絲絲暖意;餐邊柜設計富有層次感,白色柜面選擇了燈帶進行點綴,藝術燈具和掛畫改善了內部呆板的環境,呈現出精致簡約感。


    臥室


    6.jpg


    臥室空間以粉色和米色為主色調,背景墻融入一抹浪漫粉,空間立刻充滿了慵懶與暖意;灰白色的床鋪在空間中形成點綴,給人干凈整潔的視覺感受,梳妝柜見縫插針,層次分明,展現出空間的個性感。


    在施工地
    • 開工
    • 前期
    • 中期
    • 后期
    • 竣工
    預約設計師
    海量行家, 搶訂免費設計服務
    每日前20名申請用戶, 獲3D裝修設計圖
    預約設計師
    姓名*
    樓盤*
    電話*
    *為了您的權益, 您的隱私將嚴格保密
    推薦相關案例
    免費獲取同款設計方案
    姓名*
    樓盤*
    電話*
    *為了您的權益, 您的隱私將嚴格保密
    預約成功
    您已報名成功, 稍后會有客服人員聯系您。 您的隱私將被嚴格保密。
    關注二維碼了解更多裝修知識
    聯系我們
    裝修咨詢電話 : 027-82411111
    售后服務電話 : 027-82866788
    公司地址 : 武漢市江岸區澳門路232號金冠大廈
    關于我們
    友情鏈接 :
      武漢澳華裝飾設計工程有限公司 頁面版權所有 www.lygtdj.com

      算一算,您家裝修需要花多少錢?

      知精準報價 避裝修深坑

      01/03

      選擇您喜歡的風格

      • 現代輕奢

      • 現代美式

      • 北歐

      • 新中式

      • 歐式

      • 其他

      算一算,您家裝修要花多少錢?

      知精準報價 避裝修深坑

      02/03

      選擇房屋面積區間

      • 80-100㎡
      • 100-140㎡
      • 140-200㎡
      • 200-300㎡
      • 300㎡以上

      03/03

      您的戶型

      • 兩居室

      • 三居室

      • 四居室

      • 五居室

      • 六居室

      算一算,您家裝修要花多少錢?

      知精準報價 避裝修深坑

      0%

      稍等片刻,您的報價正在生中......

      算一算,您家裝修要花多少錢?

      知精準報價 避裝修深坑

      您的完整報價已經生成

      報名成功享搶訂優惠名額

      每日僅限前10名用戶