今日股市推荐排名-热点股票指标公式-【东方资本】,如何股票做空,可靠的股票配资平台是哪个,股票开通t 0最简单三个步骤

24小時咨詢電話
027-82411111
當前位置 : 首頁 > 大咖設計 > 程奇
找TA設計
空間規劃
DESIGNER
程奇 主任設計師
從業時間 : 2004 作品數量 :4套
司 : 總部旗艦店
業主評價 :
    • 功底厚
    • 家庭設計美觀
    • 效果和預想一致
    • 經驗豐富
    • 造型新潮
    • 專業知識強
    現代簡約,輕奢,法式,日式
    • 個人簡介
    • 設計理念
    • 經典樓盤
    • 中國室內裝飾協會(CIDA)-注冊室內設計師

      中國精英設計師國際俱樂部-ICCED精英設計師成員

      武漢建筑裝飾行業優秀設計師2008年榮獲武漢建筑裝飾行業優秀設計師

      2010年榮獲謙億杯超級設計師大獎賽最佳設計獎

      2012年獲中國室內裝飾協會(CIDA)-注冊室內設計師

      2015年武漢市建筑裝飾行業優秀設計師

      2019年工匠杯職業技能大賽室內設計大賽優秀獎

      2022年獲紅鼎獎三等獎

      2023年獲紅鼎獎優秀獎

    • 設計源于生活,需要不斷的溝通和交流,人才是空間的主角。完美的設計是將空間的功能,先進的裝飾材料,個性化的需求有機的結合起來,讓生活中的主角能夠自由自在的融入屬于自己的獨特空間。

    • 保利中央公館、頂琇國際公館、復地東湖國際、光彩國際、華發中央首府、華發外灘首府、漢口印、玖熙臺

    相關案例
    戶型解析
    在施工地
    其他案例推薦
    相關案例
    戶型解析
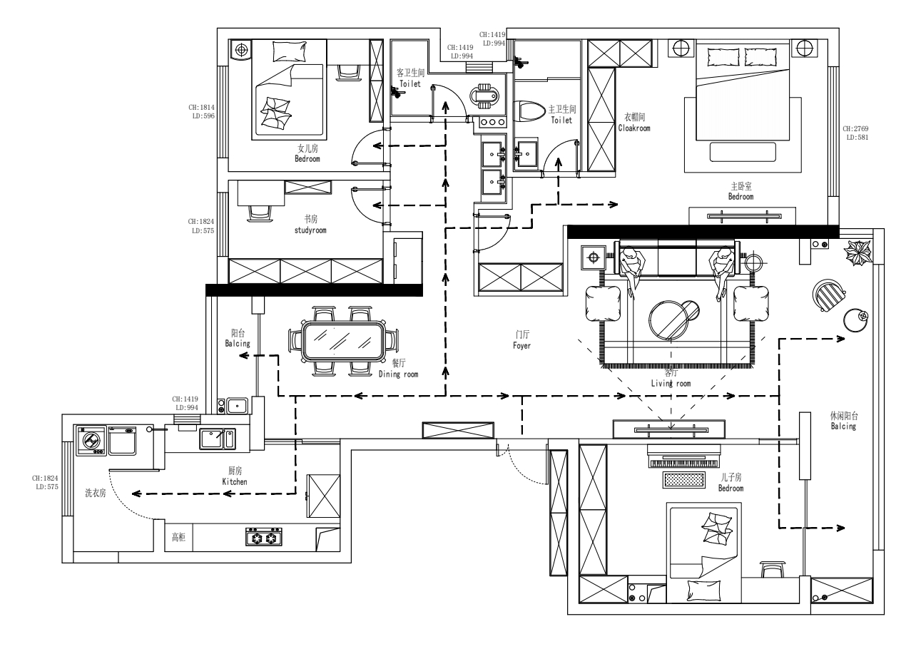
    華發外灘首府180㎡四居室新中式雅苑戶型解析
    四居室
    180m2
    新中式

        案例簡介:本案例的業主是一對75后夫妻,兩個人育有一雙兒女,他們對于家的期望就是足夠干凈整潔且易于打理,因為忙于工作的他們沒有太多時間用于家居整理上?;诖?,設計師選擇了相對比較耐看且不顯臟的新中式裝修風,同時融入各種現代化元素來提升空間的時尚氣息,以保障家居空間能夠更好的為業主服務。


        戶型解析:




        華發外灘首府的這套180㎡的四居室住宅原有的戶型結構符合業主一家人的起居生活習慣,因此設計師沒有對戶型進行過多的改動。而為了滿足家庭孩子們的閱讀、學習需求,設計師將房屋中原本的次臥改造成一個迷你小書房。而走廊過道處則減少各種花里胡哨的設計,強調簡潔,以便于后續生活的清潔打掃。


        客廳:





        優雅的灰色耐看且耐臟,搭配以簡約的素雅山水畫,讓空間流淌著清新的古韻氣息。大面積的落地窗則讓室外美景一覽無余。


        廚房:


    廚房.jpg

        為了節約空間面積,設計師將廚房打造為開放式設計,搭配以各種大收納的櫥柜,實用而又耐看。


        臥室:




        淡綠色墻面搭配上白色衣柜,整體強調清新簡潔感。而床頭柜處則背帶按照成一個迷你辦公區,有效提升空間利用率。


        衛生間:


    衛生間.jpg


        大面積的白色簡潔清新,搭配以線條深色處理,勾勒出空間的框架感與結構感。


    在施工地
    • 開工
    • 前期
    • 中期
    • 后期
    • 竣工
    預約設計師
    海量行家, 搶訂免費設計服務
    每日前20名申請用戶, 獲3D裝修設計圖
    預約設計師
    姓名*
    樓盤*
    電話*
    *為了您的權益, 您的隱私將嚴格保密
    推薦相關案例
    免費獲取同款設計方案
    姓名*
    樓盤*
    電話*
    *為了您的權益, 您的隱私將嚴格保密
    預約成功
    您已報名成功, 稍后會有客服人員聯系您。 您的隱私將被嚴格保密。
    關注二維碼了解更多裝修知識
    聯系我們
    裝修咨詢電話 : 027-82411111
    售后服務電話 : 027-82866788
    公司地址 : 武漢市江岸區澳門路232號金冠大廈
    關于我們
    友情鏈接 :
      武漢澳華裝飾設計工程有限公司 頁面版權所有 www.lygtdj.com

      算一算,您家裝修需要花多少錢?

      知精準報價 避裝修深坑

      01/03

      選擇您喜歡的風格

      • 現代輕奢

      • 現代美式

      • 北歐

      • 新中式

      • 歐式

      • 其他

      算一算,您家裝修要花多少錢?

      知精準報價 避裝修深坑

      02/03

      選擇房屋面積區間

      • 80-100㎡
      • 100-140㎡
      • 140-200㎡
      • 200-300㎡
      • 300㎡以上

      03/03

      您的戶型

      • 兩居室

      • 三居室

      • 四居室

      • 五居室

      • 六居室

      算一算,您家裝修要花多少錢?

      知精準報價 避裝修深坑

      0%

      稍等片刻,您的報價正在生中......

      算一算,您家裝修要花多少錢?

      知精準報價 避裝修深坑

      您的完整報價已經生成

      報名成功享搶訂優惠名額

      每日僅限前10名用戶