今日股市推荐排名-热点股票指标公式-【东方资本】,如何股票做空,可靠的股票配资平台是哪个,股票开通t 0最简单三个步骤

24小時咨詢電話
027-82411111
當前位置 : 首頁 > 大咖設計 > 曹斕
找TA設計
風格設計
DESIGNER
曹斕 主任設計師
從業時間 : 2003 作品數量 :1套
司 : 總部旗艦店
業主評價 :
    • 成熟穩重
    • 方案規劃合理
    • 溝通清晰易懂
    • 專業能力強
    • 設計思路明確
    • 精細化設計
    現代簡約,輕奢,美式,新中式,歐式
    • 個人簡介
    • 設計理念
    • 經典樓盤

    • 行業資質:


      武漢建筑裝飾協會高級會員

      武漢建筑裝飾協會高級建筑裝飾設計師

      中國建筑裝飾協會資深設計師


      榮獲獎項:


      2006 武漢DK設計大賽優秀獎

      2006 全國住宅裝飾裝修行業優秀設計師獎

      2011 全國住宅裝飾裝修行業資深設計師獎

      2016 筑巢杯全國優秀作品獎

      2021 武漢第五屆環境藝術大賽住宅空間優秀獎



    • “設計來源于生活,但又服務于生活之中”;以期待達到人文居住環境的和諧統一。”



    • 水岸星城、復地東湖國際、友誼國際、 世紀江尚、 中國院子聯排、夢湖香郡獨棟、千年美麗獨棟

    相關案例
    戶型解析
    在施工地
    其他案例推薦
    相關案例
    戶型解析
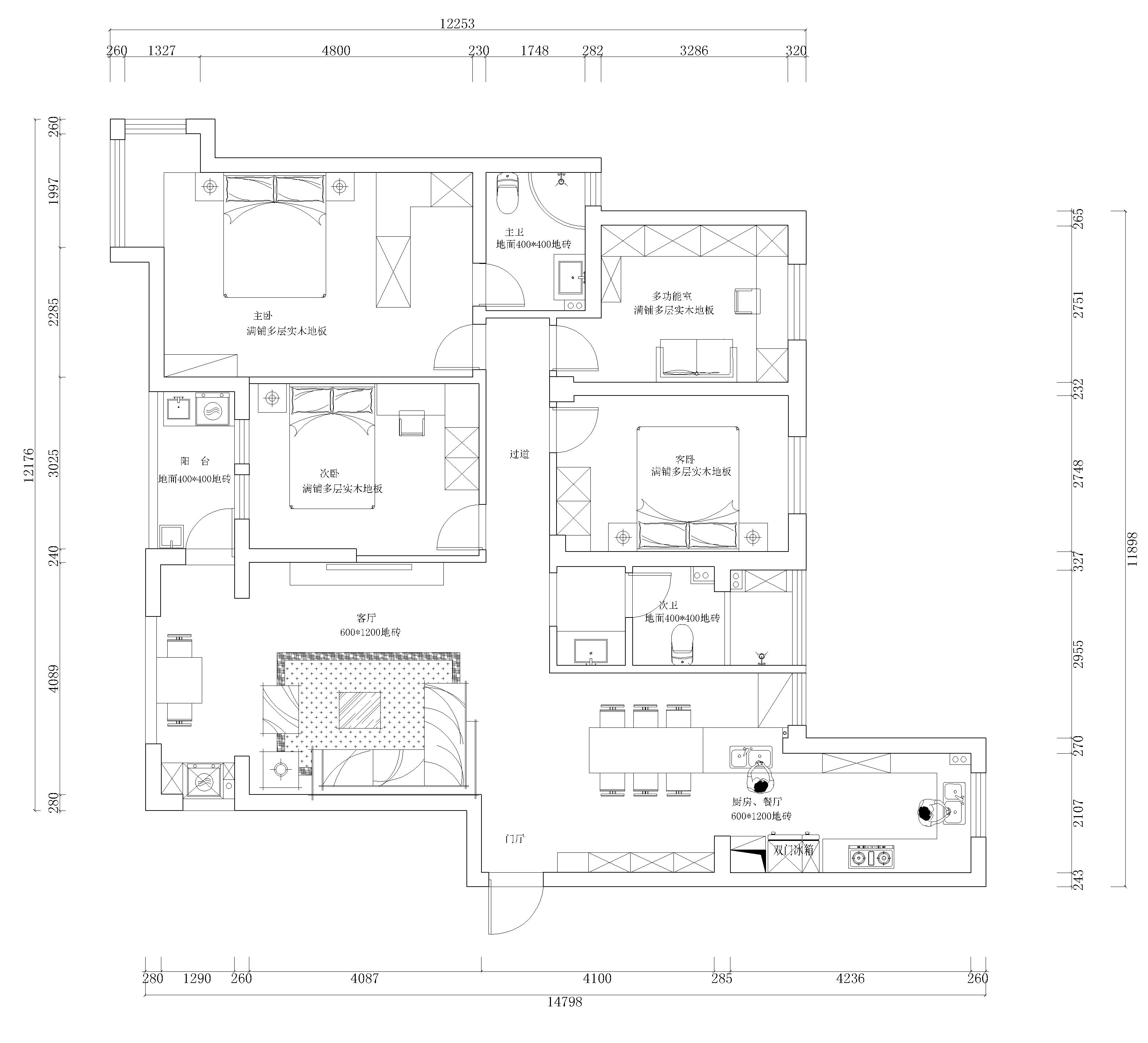
    航天雙城168㎡四居室輕奢住宅戶型解析
    四居室
    168m2
    輕奢風

        案例簡介:在設計整體選材上選用質感的材料——全拋釉地磚、多層地板、白色木門、墻面墻布,材質間相互融合對比以彰顯整體空間的貴氣感,更加滿足其人文的功能需求,在布局上把空間合理化,讓空間成為了設計的主導;設計重視簡潔,讓整體更加和諧、溫暖舒適,讓業主在安靜、遐想的空間小憩,更加關照人的內心世界。


        戶型解析:


    1.jpg

        航天雙城輕奢住宅的面積是168平方米,房屋的整體戶型很方正,房屋做到了四面通風的設計狀態。整體室內的陽光以及通風情況都是很不錯的,兩個衛生間的設計滿足了多子家庭的使用狀態,即便是每一個人都著急外出也不會出現衛生間不夠用的尷尬。而且客廳的陽臺又開拓了一片新天地,具有不同的居住感受。


        客廳:


    2.jpg


        灰色的格調彰顯了整體的高貴感,椅子和茶幾都可以感受到輕奢的時尚體驗。


        餐廳:




        白色的桌面和灰色的椅子別具一格,墻面的簡單設計令餐廳看起來非常舒適,餐廳同時還滿足了入戶的儲物需要。


        臥室:




        臥室和工作融合成為一體,臥室的飄窗以及床鋪能夠令人整個人感覺很放松。


    在施工地
    • 開工
    • 前期
    • 中期
    • 后期
    • 竣工
    預約設計師
    海量行家, 搶訂免費設計服務
    每日前20名申請用戶, 獲3D裝修設計圖
    預約設計師
    姓名*
    樓盤*
    電話*
    *為了您的權益, 您的隱私將嚴格保密
    推薦相關案例
    免費獲取同款設計方案
    姓名*
    樓盤*
    電話*
    *為了您的權益, 您的隱私將嚴格保密
    預約成功
    您已報名成功, 稍后會有客服人員聯系您。 您的隱私將被嚴格保密。
    關注二維碼了解更多裝修知識
    聯系我們
    裝修咨詢電話 : 027-82411111
    售后服務電話 : 027-82866788
    公司地址 : 武漢市江岸區澳門路232號金冠大廈
    關于我們
    友情鏈接 :
      武漢澳華裝飾設計工程有限公司 頁面版權所有 www.lygtdj.com

      算一算,您家裝修需要花多少錢?

      知精準報價 避裝修深坑

      01/03

      選擇您喜歡的風格

      • 現代輕奢

      • 現代美式

      • 北歐

      • 新中式

      • 歐式

      • 其他

      算一算,您家裝修要花多少錢?

      知精準報價 避裝修深坑

      02/03

      選擇房屋面積區間

      • 80-100㎡
      • 100-140㎡
      • 140-200㎡
      • 200-300㎡
      • 300㎡以上

      03/03

      您的戶型

      • 兩居室

      • 三居室

      • 四居室

      • 五居室

      • 六居室

      算一算,您家裝修要花多少錢?

      知精準報價 避裝修深坑

      0%

      稍等片刻,您的報價正在生中......

      算一算,您家裝修要花多少錢?

      知精準報價 避裝修深坑

      您的完整報價已經生成

      報名成功享搶訂優惠名額

      每日僅限前10名用戶