今日股市推荐排名-热点股票指标公式-【东方资本】,如何股票做空,可靠的股票配资平台是哪个,股票开通t 0最简单三个步骤

24小時咨詢電話
027-82411111
當前位置 : 首頁 > 大咖設計 > 彭彬
找TA設計
認真負責
DESIGNER
彭彬 主任設計師
從業時間 : 2011 作品數量 :3套
司 : 華中超級旗艦店
業主評價 :
    • 設計水平高
    • 有獨特見解
    • 經驗豐富
    • 裝修有質感
    • 交給他放心
    • 專業可靠
    極簡風,法式,中古風,意式風,奶油風
    • 個人簡介
    • 設計理念
    • 經典樓盤
    • 2015年中國室內設計年度評選設計優秀獎

      2016年筑巢杯全國優秀作品將

      2017年筑巢杯全國優秀作品獎

      2018年湖北環境藝術大賽優秀獎

      2020年紅鼎獎優秀作品

      2023中國室內設計年度評選設計優秀獎


    • “藝術的偉大意義,在于它能顯示人的真正情感、內心生活的奧秘和熱情的世界。”那么,藝術之于家的再現,便是最真是的詮釋。


    • 中建大公館、正榮紫闕臺、華僑城原岸、復地東湖國際、聯發悅榕華


    相關案例
    戶型解析
    在施工地
    其他案例推薦
    相關案例
    戶型解析
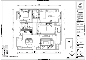
    東湖壹號196㎡四居室歐式復古住宅戶型解析
    大平層
    196m2
    歐式風

        案例簡介:


        歐式風格可以說是許多中老年人所偏愛的裝修風格,這種風格所打造的房屋往往帶有一種端莊的大氣華貴質感,也因此許多退休老人都會選擇使用該裝修風格裝飾房屋。本案例的業主強調自己有一對兒女,平時在休息的時候會過來看看自己,因此設計師在對空間進行規劃設計的時候,除了考慮老人的審美與起居使用需求外,還融入了一些現代化的元素,以確保空間能夠更好為各位家庭成員所服務。


        戶型解析:


    1.jpg


        這所彭彬東湖壹號的四居室房屋面積為196㎡,空間不算小,且空間原始結構的缺陷相對比較少,因此設計師沒有對格局進行過多改動,在保留原有戶型結構的基礎上進行了合理的裝飾設計。由于過道處空間相對比較狹小且距離較長,設計師在對該區域進行設計的時候就利用了色彩的搭配以及裝飾元素的點綴,來提升該空間的美觀度與大氣感。


        玄關:


    2.jpg


        該戶型的玄關屬于長條形結構,且相對比較狹窄,所以設計師并沒有在該區域做過多的裝飾設計,而是利用暖黃色作為主基調色,強調空間的歐式風情,同時借助兩幅簡約的歐式掛畫進行點綴,以提升空間豐富感。


        客廳:


    3.jpg


    1.jpg


        客廳按照老人的審美使用了相對比較溫馨的暖黃色作為主基調色,同時搭配以鑲邊處理的背景墻面,營造一種富麗堂皇的貴族氣息。帶有歐洲風情的沙發進行了一定的造型設計,以更好烘托出空間的典雅復古氣息。


        餐廳:


    4.jpg


        酒柜、油畫可以說是最為經典的歐式風元素,因此設計師在對餐廳進行規劃設計的時候就融入了這兩個元素,借用酒柜的造型設計及酒品裝飾空間,同時運用大幅油畫營造歐式浪漫風情。


        臥室:


    5.jpg


    6.jpg


        臥室使用了大量的暗紋設計,如床頭柜的暗紋筆直、床具上的暗紋雕花等等,這些暗紋設計相對沒有那么顯眼,不會破壞臥室的靜謐感,同時還能在無形之中彰顯歐式風的高貴典雅氣息。


    在施工地
    • 開工
    • 前期
    • 中期
    • 后期
    • 竣工
    預約設計師
    海量行家, 搶訂免費設計服務
    每日前20名申請用戶, 獲3D裝修設計圖
    預約設計師
    姓名*
    樓盤*
    電話*
    *為了您的權益, 您的隱私將嚴格保密
    推薦相關案例
    免費獲取同款設計方案
    姓名*
    樓盤*
    電話*
    *為了您的權益, 您的隱私將嚴格保密
    預約成功
    您已報名成功, 稍后會有客服人員聯系您。 您的隱私將被嚴格保密。
    關注二維碼了解更多裝修知識
    聯系我們
    裝修咨詢電話 : 027-82411111
    售后服務電話 : 027-82866788
    公司地址 : 武漢市江岸區澳門路232號金冠大廈
    關于我們
    友情鏈接 :
      武漢澳華裝飾設計工程有限公司 頁面版權所有 www.lygtdj.com

      算一算,您家裝修需要花多少錢?

      知精準報價 避裝修深坑

      01/03

      選擇您喜歡的風格

      • 現代輕奢

      • 現代美式

      • 北歐

      • 新中式

      • 歐式

      • 其他

      算一算,您家裝修要花多少錢?

      知精準報價 避裝修深坑

      02/03

      選擇房屋面積區間

      • 80-100㎡
      • 100-140㎡
      • 140-200㎡
      • 200-300㎡
      • 300㎡以上

      03/03

      您的戶型

      • 兩居室

      • 三居室

      • 四居室

      • 五居室

      • 六居室

      算一算,您家裝修要花多少錢?

      知精準報價 避裝修深坑

      0%

      稍等片刻,您的報價正在生中......

      算一算,您家裝修要花多少錢?

      知精準報價 避裝修深坑

      您的完整報價已經生成

      報名成功享搶訂優惠名額

      每日僅限前10名用戶