經驗豐富
輕法式的家,宛如一幅流動的畫卷,隨時間緩緩舒展,又似一曲未竟的樂章,始終縈繞著溫柔的旋律,輕輕吟唱……
本期的家居設計,緊密貼合屋主的需求與喜好,以淡雅的法式風為設計基石,進行了細致入微的潤色與打造。這里遠離喧囂,摒棄紛擾,只留下一抹淡雅的法式風情,以及家中那份獨一無二的溫馨與舒適。
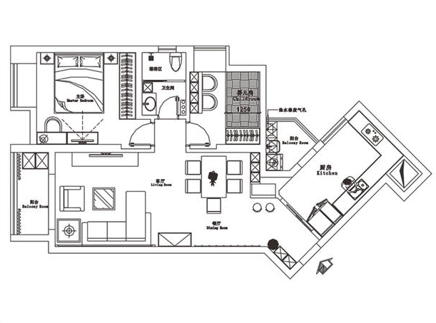
戶型解析

1、餐廚空間小,收納稍顯不足
2、主衛不能兼顧浴缸與獨立淋浴間
3、女兒房規劃書房后,收納功能不足
優化改造

1、廚房改為開放式,與餐廳相連通,增設餐邊高柜與餐島一體設計,以補充廚房功能。
2、主衛適度外擴,融入浴缸與獨立淋浴間;主臥增設整墻衣柜在床尾,優化收納空間。
3、在女兒房規劃獨立書房,房門向外擴展,利用過道增設L型衣帽間,實現空間高效利用。



淡雅的奶油色在空間中悠然彌漫,輕柔地調和客廳的氛圍,使之更顯柔和與恬靜。墻面則巧妙地運用拼色設計,結合經典的法式雕花與流暢線條,勾勒出豐富而獨具匠心的紋理與層次,為整個空間增添了一抹優雅與精致的氣息。


家居生活的柔軟溫和之處,藏匿于生活的點滴細節之中。沙發如同云朵般柔軟,輕柔地擁抱著每一個靜坐其上的人,給予他們無盡的舒適與寧靜。


陽臺被改造為茶室,隨手取下一本書,靜靜閱讀,間或品上幾口香茗,一幅如絲綢般流暢舒適的浪漫畫卷便緩緩展開。



重新排布家居空間的功能形式,矯正其表現形態以完善公共區域的融洽相處。通過客餐廳一體化結合餐島一體的設計,令家人間的互動更為親密直接。同時,精細調配空間需求,確保功能與居住舒適感達到完美平衡,營造張弛有度的家居氛圍。


島臺旁,一列高挑的法式櫥柜展現著非凡的氣度,定制設計將恒溫酒柜、管線機完美嵌入,同時保留了充裕的收納空間,讓廚房用具井然有序。背景墻上,湖藍色瓷磚如同法式莊園中的靜謐湖泊,將用餐氛圍渲染得更為寧靜與優雅。

以美感與功能為首要考量,同時兼顧空間的開闊感和強大的儲物需求,廚房采用了開放式設計,與餐廳相連通,內部布局呈U型,相鄰空間的功能互補足以滿足生活中的各種需求。


個性化氣球燈、法式雕花墻板、魚骨拼木地板與淺咖乳膠漆墻面的完美結合,將法式的優雅氣質貫穿整個臥室空間,賦予空間強烈的時尚魅力,烘托出如詩的愜意。

套房自帶干濕分離的衛生間設計,顯著提升了整體空間的使用體驗。優雅的洗手臺、舒適的浴缸、精致的玻璃淋浴房和便捷的智能馬桶,每一處細節都經過精心雕琢,為居者帶來更為舒適的居住體驗。

木質地板散發著溫暖的氣息,拼色雕花墻板則勾勒出一份慵懶浪漫的情懷。女兒房的設計溫柔而不失俏皮,將儲物柜設計成拱門造型,既滿足了儲物需求,又激發了孩子的探索欲。

重新梳理平面布局并強化功能設計,以儲物柜、學習桌將書房與休憩區隔斷,空間的密切聯系與區域下的獨立感都得以滿足。書房內既有電腦桌面空間,又擺放有鋼琴,同時運用弧形元素來柔化空間結構,將居者的空間訴求與當下氛圍妥善安排。

床尾融入獨立衛浴空間,通過巧妙的層次感設計,將各大功能區劃分得井井有條,完美塑造出獨具魅力的生活質感,令人陶醉。
案例簡介:
本案例的業主為年輕的夫婦且有一個兩歲的嬰兒,根據房屋的結構特點與業主的實際需求,空間的實際設計重點放在了如何化解空間犄角及如何滿足一家三口居住使用上。整個房屋選用了耐看的現代簡約風,同時借助各類現代化的時尚元素裝飾空間,以起到較好的點綴效果。色彩的則使用了業主偏愛的暖黃色,通過暖黃色的搭配使用來突出空間的溫馨時尚氣息。
戶型分析:

世紀江尚的這套150㎡的四居室房屋,空間戶型結構相對比較復雜,如何將處于非正位置上的空間區域進行合理高效的利用成為了該戶型房屋的設計難度。設計師根據業主的實際需求將兩個臥室設計于對門處,以滿足業主照看孩子的需求。而房屋相對比較犄角的區域則設置為廚房,如此即可將空間合理利用,又能夠避免廚房區域的油煙進入生活區域空間,
客廳:

客廳區域使用了相對比較清新柔和的暖黃色作為主基調色,以營造家的溫馨感。帶有珠光質感的大理石材質背景墻搭配上生命力旺盛的綠植,一種典雅而又清新自然的活力美油然而生。深棕色地毯搭配上白色布藝沙發,則強調了一種碰撞時尚氣息。
餐廳:

餐廳區域設置在客廳區域的同一直線上,且兩個空間之間沒有使用硬隔斷,有效保障了整個空間的通透感。而餐廳側面的玻璃墻面設置,則從視覺上起到放大空間的作用,讓整個空間更顯現代時尚氣息的同時更具大氣美。
知精準報價 避裝修深坑
選擇您喜歡的風格
現代輕奢
現代美式
北歐
新中式
歐式
其他
知精準報價 避裝修深坑
選擇房屋面積區間
您的戶型
兩居室
三居室
四居室
五居室
六居室
知精準報價 避裝修深坑
稍等片刻,您的報價正在生中......
知精準報價 避裝修深坑
每日僅限前10名用戶