今日股市推荐排名-热点股票指标公式-【东方资本】,如何股票做空,可靠的股票配资平台是哪个,股票开通t 0最简单三个步骤

24小時咨詢電話
027-82411111
當前位置 : 首頁 > 大咖設計 > 汪浩農
找TA設計
做事認真
DESIGNER
汪浩農 設計總監
從業時間 : 2004 作品數量 :8套
司 : 總部旗艦店
業主評價 :
    • 色彩搭配新穎
    • 專業可靠
    • 設計水平高
    • 經驗豐富
    • 溝通愉快
    • 溫馨的室內氛圍
    現代簡約,法式,新中式,中古風,意式風
    • 個人簡介
    • 設計理念
    • 經典樓盤

    • 中國裝飾協會高級會員

      中國建筑裝飾協會高級室內設計師


      2004年武漢市第二屆澤皓雅居DK設計大賽優秀獎

      2005年中國澤皓雅居杯設計大賽入圍獎

      2006年榮獲全國優秀設計師

      2008年中國建筑裝飾協會高級會員

      2010年武漢藝博室內陳設設計白金設計師大賽三等獎

      2015年武漢十九屆室內設計師技能大賽二等獎

      2016年中國高端別墅設計大賽佳作獎

      2021年武漢十佳設計師

      2022年武漢中國家裝產業創新大賽紅鼎獎一等獎




    • 復雜的重點是簡單,簡單的生活方式就是讓我們放下繁雜,丟棄成見,返璞歸真,給簡單的生活帶來無盡的精神享受。



    • 新華尚水灣,中信泰富濱江金融城,金科城,正榮紫闕臺,空軍小區,世紀江尚,華發外灘首府


    相關案例
    戶型解析
    在施工地
    其他案例推薦
    相關案例
    戶型解析
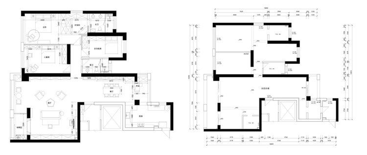
    華發外灘首府220平米四居現代風戶型解析
    四居室
    220m2
    現代風

    案例介紹:220㎡的四房大戶型采用現代輕奢風格設計,大氣雅致,歷久彌新。業主是一個多子家庭,喜愛具有女王氣場的咖色系輕奢風,希望設計師為百變空間塑造優雅基調,注入品質與時尚,呈現出令人回味,倍顯精致的獨特魅力。


    戶型解析


    1.jpg


    原始戶型瑣碎空間比較多,為了提升空間的利用率,設計師將原始客廳的墻體打通,令餐廳與客廳一體化銜接,提升了室內的采光和通風,廚房空間也做了調整,將廚房原本帶有的陽臺合并到廚房內,提升了烹飪面積;臥室集中分布,動靜分離,為了滿足家庭需求,設計師專門隔出一個房間,增加了臥室數量。


    客廳



    客廳以咖色系為主基調,浪漫的配色帶有女王氣質,簡約的線條中不失輕奢韻味;背景墻一面設計為書柜,一面設計為辦公空間,別有一番風味;灰色絨質沙發與橘色單椅圍合式放置,空間更具設計感,雕塑、擺件、燈具等元素,都令客廳帶有復古的氣息。


    餐廳


    6.jpg


    打造餐廳的精致感不需要太過復雜的裝飾,餐邊柜以收納功能為主,添置燈帶裝飾,即可呈現出時尚氛圍,餐桌椅的造型盡量時尚一些,搭配水晶燈具,足以展現出大方氣質。


    臥室


    151627320137.jpg


    臥室采用無吊頂設計,四周添置的燈帶提升了空間的浪漫感;透明柜面的衣柜更具視覺張力,令臥室空間的個性升級;背景中采用石膏線勾勒,時尚氣息濃郁,凸顯出業主對時尚的眼光。


    在施工地
    • 開工
    • 前期
    • 中期
    • 后期
    • 竣工
    預約設計師
    海量行家, 搶訂免費設計服務
    每日前20名申請用戶, 獲3D裝修設計圖
    預約設計師
    姓名*
    樓盤*
    電話*
    *為了您的權益, 您的隱私將嚴格保密
    推薦相關案例
    免費獲取同款設計方案
    姓名*
    樓盤*
    電話*
    *為了您的權益, 您的隱私將嚴格保密
    預約成功
    您已報名成功, 稍后會有客服人員聯系您。 您的隱私將被嚴格保密。
    關注二維碼了解更多裝修知識
    聯系我們
    裝修咨詢電話 : 027-82411111
    售后服務電話 : 027-82866788
    公司地址 : 武漢市江岸區澳門路232號金冠大廈
    關于我們
    友情鏈接 :
      武漢澳華裝飾設計工程有限公司 頁面版權所有 www.lygtdj.com

      算一算,您家裝修需要花多少錢?

      知精準報價 避裝修深坑

      01/03

      選擇您喜歡的風格

      • 現代輕奢

      • 現代美式

      • 北歐

      • 新中式

      • 歐式

      • 其他

      算一算,您家裝修要花多少錢?

      知精準報價 避裝修深坑

      02/03

      選擇房屋面積區間

      • 80-100㎡
      • 100-140㎡
      • 140-200㎡
      • 200-300㎡
      • 300㎡以上

      03/03

      您的戶型

      • 兩居室

      • 三居室

      • 四居室

      • 五居室

      • 六居室

      算一算,您家裝修要花多少錢?

      知精準報價 避裝修深坑

      0%

      稍等片刻,您的報價正在生中......

      算一算,您家裝修要花多少錢?

      知精準報價 避裝修深坑

      您的完整報價已經生成

      報名成功享搶訂優惠名額

      每日僅限前10名用戶