做事認真
案例介紹
業主對家的定義:作為多子家庭,孩子的生活品質是自己極為關注的部分,在風格的選擇上,奢華而不奢靡的歐式風格能為孩子帶來更多優質的視覺感受,而歐式家具的細膩質感能帶來品質的生活體驗,符合家庭對家的期待。業主希望孩子在空間中有用更多活動面積,精致布置之余不失童趣與溫馨感。
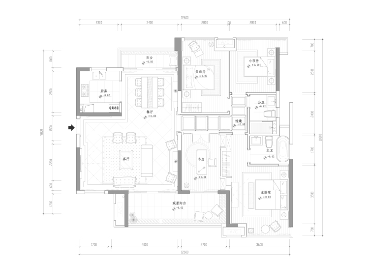
戶型解析

這是橡樹灣中一套160㎡的四居室,戶型面積中等,采光條件好,但內部分區較多,休憩區分區雜亂,需要設計出有邏輯的行動走線,這樣整體空間才具有設計感和時尚感。將餐廳與客廳中的非承重墻拆除,將兩個功能區合二為一,擴大了公共區域面積,使日常走動更為方便,以過道為中心,南北各分布兩個休憩區,日常生活變得更為舒適。
玄關


玄關為進門見廳的格局,過道并不長,墻面裝飾簡單。
客廳


餐廳與客廳一體化布局,白色基調下給人一種雍容典雅的視覺觀感,歐式皮質沙發自帶質感與顏值,搭配方形歐式茶幾和深灰色地毯,演繹出優雅、上檔次的歐式風尚,在整個空間中,家具多以獸腿造型呈現,符合歐式風格特色。
臥室

臥室空間邂逅浪漫紫色,時尚高雅的軟包設計不僅增添了隔音效果,也散發出優雅古典的歐式氣息,電視機的融入凸顯出主人對高品質生活的追求,傳遞出舒適智能的歐式生活品質。
其他

兒童房以米色調為背景,搭配白色歐式雙人床,傳遞出靜謐柔和的家居氛圍,卡通元素的融入令空間洋溢著青春鮮活的氣息。
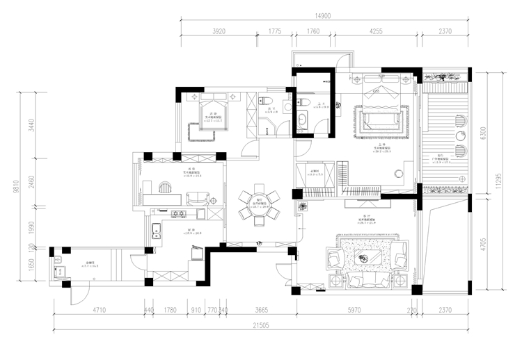
案例簡介:
該戶型空間以簡約的暖黃色、白色為主色調,局部則貫穿以藍色,整體清新典雅浪漫而又不失溫馨美。質感溫潤的木質材料與堅硬水泥墻面的碰撞,讓空間多一抹溫暖如玉的氣質美與格調感。半透明的玻璃門設計,讓各個可能空間層次結構分明的同時,不會顯得過于生硬,讓空間更具通透柔韻味美。
戶型分析:

這是一套位于東湖天下的180㎡四居室房屋,空間面積做大且戶型結構相對沒有太多瑕疵,因此在設計時無需在戶型空間的改造上做過多“糾纏”,以業主及其家人的使用需求為主即可。以不同材質的地面材料為空間隔斷,能夠讓整個房屋更顯緊湊合理。為讓各個功能空間更具銜接感與一直性,不同的功能空間使用了相似的元素或者色彩進行裝飾,以從視覺上保障整個房屋空間的和諧美。
客廳:

客廳區域使用白色與原木色作為主基調色,白色的墻面搭配上帶有自然紋理的木質地板,一種自然清新之美呼之欲出。藍色的窗簾則為空間增添了一抹活潑之美,讓整個客廳空間看起來不會過于呆板無趣,增添了浪漫韻味。
餐廳:

餐廳區域同樣適用了白色與木色作為主基調色,以保障就餐區域與客廳區域的一致性與和諧美。帶有淡藍色印花布藝處理的餐椅讓就餐區域多了一抹田園浪漫氣息。
知精準報價 避裝修深坑
選擇您喜歡的風格
現代輕奢
現代美式
北歐
新中式
歐式
其他
知精準報價 避裝修深坑
選擇房屋面積區間
您的戶型
兩居室
三居室
四居室
五居室
六居室
知精準報價 避裝修深坑
稍等片刻,您的報價正在生中......
知精準報價 避裝修深坑
每日僅限前10名用戶