經驗豐富
案例簡介:本裝修案例為現代意式極簡風格,設計以業主的品味、審美以及生活習慣為考慮依據,空間整體以素色系色彩為主基調色,把一些復雜的元素都去除,保留必要元素加以少量裝飾,打破繁瑣而又不實用的設計,幫助業主享受生活本質。各類線條的穿插使用,則為空間的結構感、層次感增添了一抹時尚氛圍。
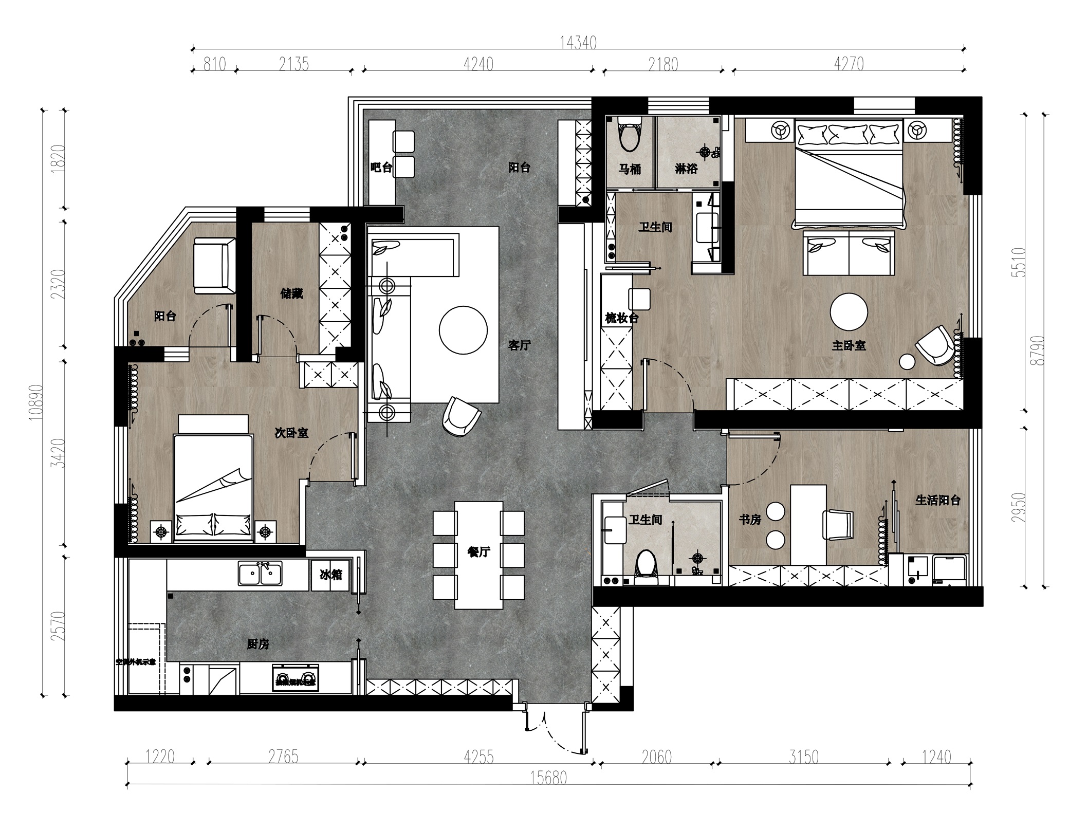
戶型解析:


西斯萊公館的這套房屋面積約為200㎡,空間戶型上存在著一個斜坡角度,該斜坡導致整個家居空間中出現一個三角形角落,如何對這塊區域進行合理的規劃設計,在滿足使用需求的前提下不會顯得違和是本次設計難點。而設計師將該快區域直接融入臥室區域,然后借助斜坡打造一個藝術感陽臺,提升臥室區域通風透氣效果的同時,有效化解了空間犄角帶來的局限性。
客廳:


客廳區域借助線條的搭配與組合來形成裝飾,背景墻處的幾何切割、曲線型的沙發等,為整個空間整潔而又不失藝術感。
餐廳:

為保障空間整體的銜接感,就餐區域選用了與會客區域一致的配色與桌椅,通過座椅的體量與擺放進行空間區分。
臥室:


相比于其他功能空間,臥室區域使用了較多的木質材料,通過木材本身的溫潤質感提升空間溫馨舒適氛圍。
衛生間:

大理石材質清冷而又高級,搭配上大面積簡約方形鏡子,大氣耐看而又實用。
案例簡介:本案例的業主作為一個年輕的創業者,平常工作帶給他太多壓力,因此他希望能夠擁有一個舒適的休憩空間,讓自己能夠得到真真正正的放松。因此設計師在進行空間設計時,選用了一些相對比較簡約而又不易過時的元素,同時借用色彩的搭配來強調整個家居空間的溫馨感。為了能夠讓居住者能夠更好的得到心靈休憩,設計師將空間中的陽臺區域放大打造成一個休閑區,可供居住者觀賞室外美景、放松身心。
戶型解析:


金地自在城這套136㎡的四居室住宅雖然建筑面積不小,但是由于空間中獨立的空間比較多,因此各個功能區域的占地面積其實并不大,因此設計師在對空間進行規劃設計的時候就需要優先考慮從視覺上起到擴大空間的作用,避免造成視覺壓迫感,進而影響起居質量。而雙陽臺設計,則在保障南北通透的情況下有效提升了室內的視覺寬敞度。
客廳:


背景墻與沙發顏色上的呼應保障了整個空間的銜接感,藍色絲絨窗簾、幾何造型燈飾,則增添了空間的摩登氣息。
餐廳:

干凈的灰色墻面搭配上黑色餐桌,簡單而又不失個性感,同時為空間增添了沉穩氣息。
臥室:

對稱式背景墻設計搭配上婚紗照,溫馨而又不失高級感。灰色創兩則與床頭柜色彩相呼應,有效提升了整個室內空間的主題感。
案例簡介:本案例的主人公是一位超級“奶爸”,平時忙于工作的他希望家居空間中能夠多一些童真感與親子互動空間,以滿足孩子健康成長需求。而由于工作需求,業主還需要經常在家辦公,因此想要一塊安靜且獨立的區域。設計師在充分了解業主需求的前提下選擇了新中式風作為空間主裝修風格,搭配以港式風,強調空間個性感。同時,借助各類明亮的色彩打造兒童房與書房,以滿足親子互動及在家辦公需求。
戶型解析:

復地東湖國際7期這套三居室住宅的面積約為133㎡,原有的戶型結構已經能夠滿足業主基本使用需求,因此設計師沒有在空間規劃上進行再改動。由于房屋走廊過道相對比較狹小,因此設計師借用色彩的搭配使用從視覺上起到擴大空間的作用。兒童房外部區域則與客廳陽臺打通,改造成為一個大面積休憩空間,以滿足業主及家人休憩、觀賞需求。
客廳:



嵌入式的電視背景墻點綴上風格青花瓷花瓶,讓空間中流淌著優雅古韻。
餐廳:



大面積深褐色的木質地板搭配上清新掛畫,讓中式風所特有的典雅韻味得到很好的表達。
廚房:

為了便于打掃,廚房區域選用了各類素色而又耐臟的瓷磚,同時搭配上金屬質感收納,簡約而又不失時尚感。
書房:

簡約白色的主基調色搭配上亮色地貼,營造明快清新氛圍,滿足業主辦公需求的同時還可進行親子互動。
臥室:


簡單的線條搭配耐看而又高級,窗簾與床具之間的顏色呼應則讓空間更具和諧美。
知精準報價 避裝修深坑
選擇您喜歡的風格
現代輕奢
現代美式
北歐
新中式
歐式
其他
知精準報價 避裝修深坑
選擇房屋面積區間
您的戶型
兩居室
三居室
四居室
五居室
六居室
知精準報價 避裝修深坑
稍等片刻,您的報價正在生中......
知精準報價 避裝修深坑
每日僅限前10名用戶