認真負責
案例簡介:本案例的主人公對于簡約而又品質的舒適生活情有獨鐘,因此在進行室內裝飾的時候她希望設計師不用使用過于艷麗的色彩以及各種網紅化的元素,以簡簡單單的舒適感為主即可。設計師根據業主的需求審美以及生活習慣,為業主挑選了素雅感較為強烈的簡約風作為主裝修基調,舍棄大量華麗而又繁瑣的元素,利用材料原始的質感來營造一種返璞歸真的自然舒適感。
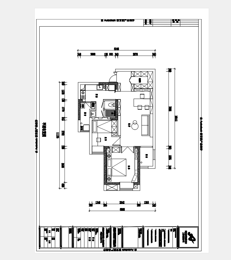
戶型解析:


百瑞景這套三居室的住宅占地面積約為90㎡,戶型結構緊湊且空間浪費少,整體需進行改動的區域并不多,且能夠滿足業主的日常使用需求,因此設計師保留了原有的空間結構。為提升空間的利用率,提高業主生活品質,設計師將狹長的客廳中切割出一小塊區域打造成迷你衣帽間,在不破壞會客區域功能使用的同時,有效提升了整個空間的合理規劃性。
客廳:

客廳借用大面積的書柜作為背景墻裝飾,簡約而又不失使用感,同時還有效提升了空間的文藝氛圍。
餐廳:

就餐區域借助白色與木色的碰撞營造一種自然的舒適美,鏤空式的儲物柜搭配上清新做舊的自然藝術掛件,典雅而又藝術感十足。
廚房:

廚房空間面積不算大,因此設計師選用了經典的“L”形設計,避免出現難以轉身的情況。同時借助大面的儲物收納設計來滿足各類廚房用具的歸置需求。
次臥:

臥室區域借用簡單的色彩來打造空間的結構感,白色與淡藍色的搭配自然而又舒適,同時從視覺上起到增強空間結構鋼的作用。
案例簡介:一個好的家裝設計能夠讓人徹底放松身心,更好享受閑暇時光的美好。而本案例的業主喜歡簡單的元素,不喜歡各種花里胡哨的造型設計,因此希望設計師能夠根據自己的審美打造出一個簡約而又不簡單的品質住宅。根據業主的需求,設計師選擇了簡約風進行室內裝飾,同時利用高檔材料本身的質感來提升室內環境的品質。
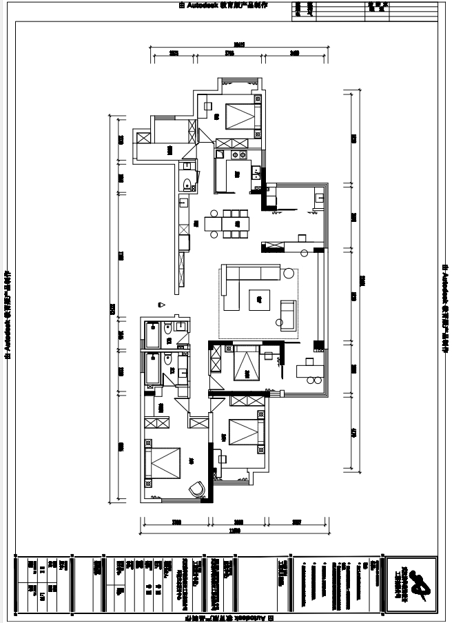
戶型解析:


水岸星城這套四居室的占地面積約為230㎡,整體戶型偏狹長形,這也就導致了部分過道走廊區域的面積相對比較擁擠,因此需要設計師做好各功能銜接處的細節處理,提升空間品質感。同時,借助各類軟隔斷提升室內空間界限感的同時有效避免環境給人壓抑感。而色彩的選擇上,則大面積使用了素雅清新的色系,強調溫馨柔和美。
客廳:


木質軟隔斷清新又溫暖,搭配上大理石背景墻,強調空間質感。
餐廳:


鏤空嵌入式雙開門大冰箱既可以滿足日常使用需求,又避免了空間浪費。
主臥:

大面積落地窗提升休憩空間采光,木質材料與白色水泥墻的組合搭配,則強調清新自然柔和美。
次臥:

次臥使用灰色作為主基調色,強調柔和的沉穩氣息,同時借助各類型線條的搭配強調空間結構美。
知精準報價 避裝修深坑
選擇您喜歡的風格
現代輕奢
現代美式
北歐
新中式
歐式
其他
知精準報價 避裝修深坑
選擇房屋面積區間
您的戶型
兩居室
三居室
四居室
五居室
六居室
知精準報價 避裝修深坑
稍等片刻,您的報價正在生中......
知精準報價 避裝修深坑
每日僅限前10名用戶