?

?
一定有很多人有過不好的居家裝修經驗,希望住進舒適優雅又有風格的家,卻碰上許多?NG?問題,如格局動線不佳、施工不良造成漏水、偷工減料等,讓美好的生活藍圖有了遺憾。到底是自己沒做功課還是運氣不好?以下為大家歸納整理出?5?大裝修時最常碰到的問題與破解建議,讓打造夢想家居不?NG!
?
Key Point 01
?
?
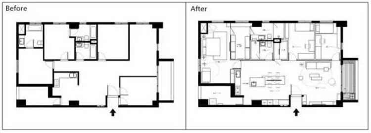
『格局配置』 適時改變格局 讓生活更舒心
?
即使面積相同,空間也有許多種格局分配方式。設計師的任務便是依照使用者習慣規劃適宜的格局與動線,常見的裝修格局有以走廊為中心,將房間配置于兩側;或回游或分散式設計。
?
下圖戶型案例:改變有畸零角落與封閉性的格局。在打掉廚房和右側房的圍墻后,一入門就是寬敞的開放式客餐廚,并把房間和衛浴都集中在同側,將各個房間的門隱藏于后, 而主臥則以通透的玻璃材質,讓每一個隔間的窗光灑入。
▲將廚房墻面拆除改成開放式餐廚;主臥一側墻面則改用窗扇,讓采光更加良好。
Key Point 02
?
?
『好采光』 讓居家生活再加分
?
有些二手住宅空氣不流通、房間格局不科學,光線昏暗。想要擁有良好采光,除依據需求適當調整格局外,還能透過材質的輔助,擴大采光的范圍,如通過窗簾的選擇營造室內好光景。
▲透過向上發展,爭取好的光線與安靜的空間。先將各樓層前方退縮,讓街道與住宅之間形成緩沖的半戶外空間,順利引入光與空氣,并以白色木地板鋪設,壁面則以水泥粉光完成,經玻璃穿透讓空間寬敞清新。
?
?
Key Point 03
?
?
『收納機能』 是打造整齊居家環境的必修學分
?
關于收納這件事,是每個居家空間中最重要、最不可避免的議題。利用家具內側或樓梯、地板作為收納,你也可以采用系統家具營造收納空間,如餐廳如果有吊掛型系統收納柜,能提升收納力。
▲平行的雙一字上、下柜,收納容量倍增,卻絲毫沒有壓迫感;餐廳旁利用梁下空間規劃餐柜,甚至連近玄關處的結構柱前,僅 20 公分的深度也不放過,規畫成儲藏干糧的收納柜。
?
?
Key Point 04
?
?
『復層空間』采光與收納設計?放大使用面積
?
夾層或挑高住宅是loft常見的格局,想增加空間使用面積則需從立面做考量,然而不良的規劃反而徒增疊床架屋的困擾。其實透過完整的規劃,便能更好的利用有限的空間。
▲在裝修挑高或夾層屋宅時,可先保留最大面積的窗戶引進采光,空間目光焦點的樓梯也可依需求轉向,透過材質的利用,以具穿透感的玻璃與開放設計展現完整的居住風格,收納機能可以規劃在樓梯間。
?
?
Key Point 05
?
?
『不想動格局』那就用設計巧思化解所有煩惱
?
不拆除墻面,也能擁有好風水又舒適的居住空間嗎?若不想改變格局,則可以通過墻面或柜體提升空間機能與視覺美感。
▲一道造型墻,將衛浴位置包覆起來,正好阻絕餐廳正對廁所門的疑慮,不僅如此,也藉由此道墻連貫玄關機能,能多出能收納個空間,完善了許多便利機能。
?
?